Ons kantoor is lid van Baerz & Co Luxury Homes; een internationaal platform dat exclusieve woningmakelaars met elkaar verbindt. Neem contact op met ons secretariaat voor meer informatie over het landelijke aanbod, waarvan u hieronder een selectie kunt bekijken.

AMSTERDAM
Singel 104 A - 1015 AD
هولندا

Sander Bovenkerk profile image
Sander Bovenkerk
Real estate agent
€3,250,000 k.k.
مساحة المعيشة
521m2
حجم الأرض
111m2
غرف نوم
7

الوصف

يُجسد منزل القناة في أمستردام Singel 104 طابع العصر الذهبي للمدينة، مع فسحة لرؤية معيشية ومهنية معاصرة أو دمجهما معًا. يوفر هذا العقار التاريخي نحو 521 م² من المساحة، موزعة على ثمانية طوابق، حيث تمنح الأسقف العالية والضوء الطبيعي والمساحات الواسعة شعورًا نادرًا بالرحابة والمرونة. يقع المنزل على أرض حرة التملك، في قلب أمستردام التاريخي بين قنوات المدينة الأصلية، وعلى بعد خطوات من المحال الراقية، والمطاعم الشهيرة، وأجواء شارع Haarlemmerstraat وHaarlemmerdijk النابضة بالحياة.

ترتكز تجربة المعيشة على تداخل التفاصيل الأصلية المحفوظة مع إمكانيات التخصيص. استخدمت الطوابق الثلاثة السفلية كمكاتب عمل، بينما توفر المساحات السكنية العلوية بيئة معيشية رحبة صممت جميعها بنوافذ كبيرة وإطلالات استثنائية على قناة السينجل. تشمل الإضافات الحديثة التهوية الطبيعية، الألواح الشمسية، عزل السقف والزجاج عالي الكفاءة، والتدفئة المركزية، ليجتمع الاستدامة بالإرث التاريخي.

تتوج الشرفة على السطح المنزل، وتطل على أفق المدينة وهدوء القناة بالأسفل. يتيح الموقع وصولاً خفيًا إلى محطة القطار المركزية في غضون خمس دقائق، مع ارتباط مباشر بطريق A10 الدائري. يُعد هذا المنزل على القناة في أمستردام سكنًا بعبق التاريخ وأساسًا لإمكانات جديدة، حيث تتوفر إمكانية التخصيص الكاملة في واحدة من أكثر المدن الأوروبية حضورًا وعراقة.

استكشف Amsterdam مع Baerz، مستشارك الشخصي الموثوق للعقارات

يتطلب التنقل في السوق الفاخر بأمستردام خبرة محلية ومعرفة تفصيلية واحترافية في التفاوض. يقدم أفضل المستشارين فرص الوصول إلى العروض الخاصة، وشرح قواعد الملكية الدقيقة، وتحديد القيمة الحقيقية في سوق نادرًا ما تتوفر فيه الفرص للعلن. توفر فرق الاستشارات تدقيقًا صارمًا للأصول وخدمة التمثيل، ما يقوي موقفك أثناء التفاوض ويضمن عملية سلسة ويحمي خصوصيتك طوال الإجراءات.

تجنب الأخطاء الشائعة

غالبًا ما يضيع المشترون الدوليون وقتًا ثمينًا على قوائم مكررة أو قديمة أو مضللة عبر الإنترنت، خاصة وأن ما يقرب من 30% من المنازل الفاخرة لا تظهر أبدًا في السوق العام. يمثل وكلاء البائعين مصالح البائع، وليس المشتري. حتى طلب معلومات عن عقار يمكن أن يؤدي إلى تسجيل وكيل البائع لك كـ "عميل" دون موافقتك.
مع بايرز فايندرز ومستشارو العقارات، تتجنب كل هذه الأخطاء تمامًا. نحن نعمل فقط نيابة عنك، ونقدم تمثيلًا مستقلًا، وإرشادات واضحة والوصول إلى جميع العقارات المتاحة، بما في ذلك الفرص خارج السوق التي لا يراها الآخرون أبدًا.

مهتم بمستشار عقارات شخصي؟

نحن نعرض لك جميع المنازل المتاحة في مكان واحد. لا تتردد في الاتصال بنا لمعرفة كيف يمكننا تلبية احتياجاتك وحماية مصالحك بشكل حصري.

الميزات

ألواح شمسية
نقل الملكية
السعر المطلوب
€ 3.250.000 k.k.
الحالة
verkocht onder voorbehoud
القبول
in overleg
البناء
نوع المنزل
Grachtenpand
نوع المبنى
tussenwoning
فترة البناء
1740
نوع السقف
zadeldak
غرف نوم
7
حمامات
2
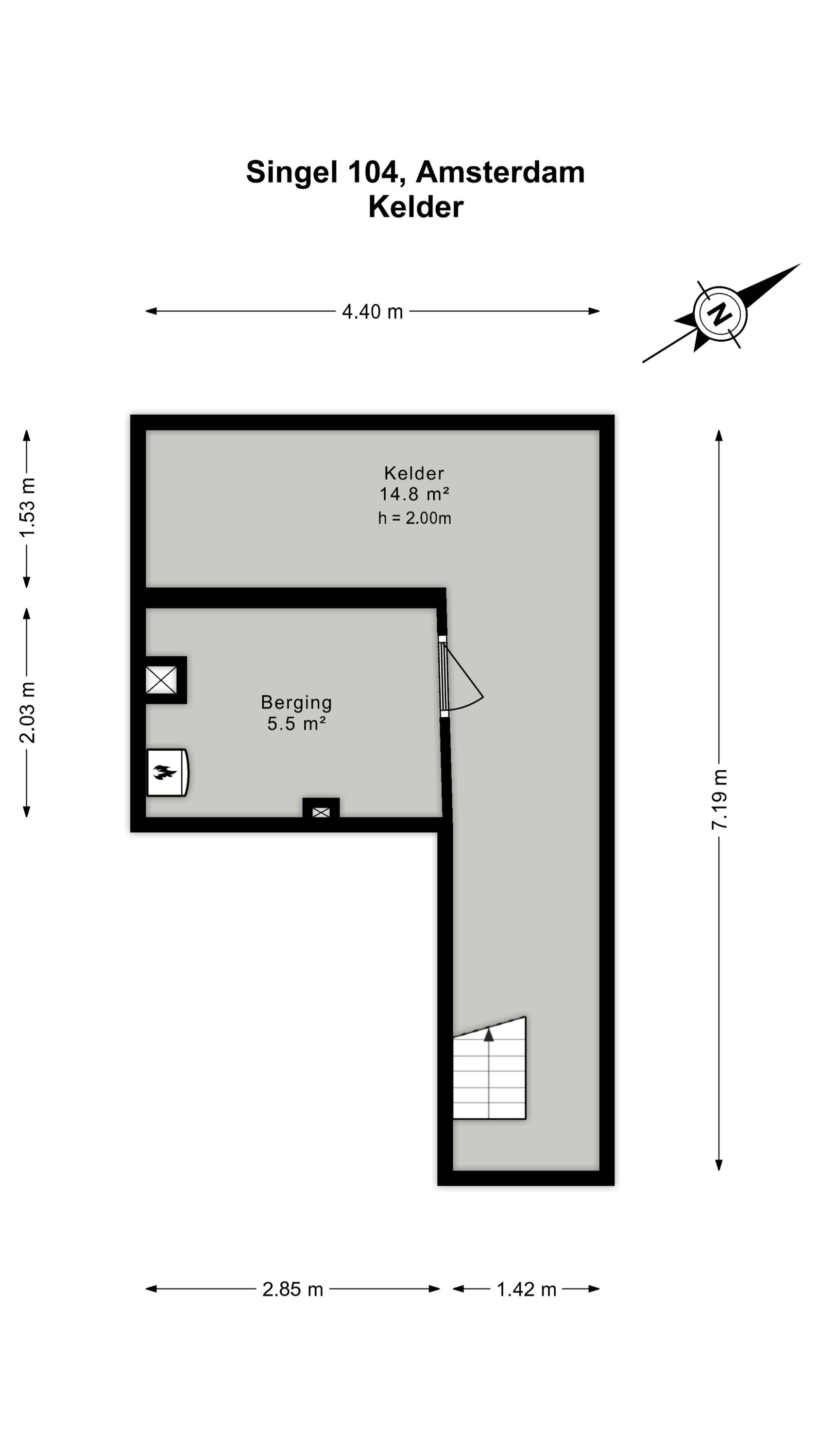
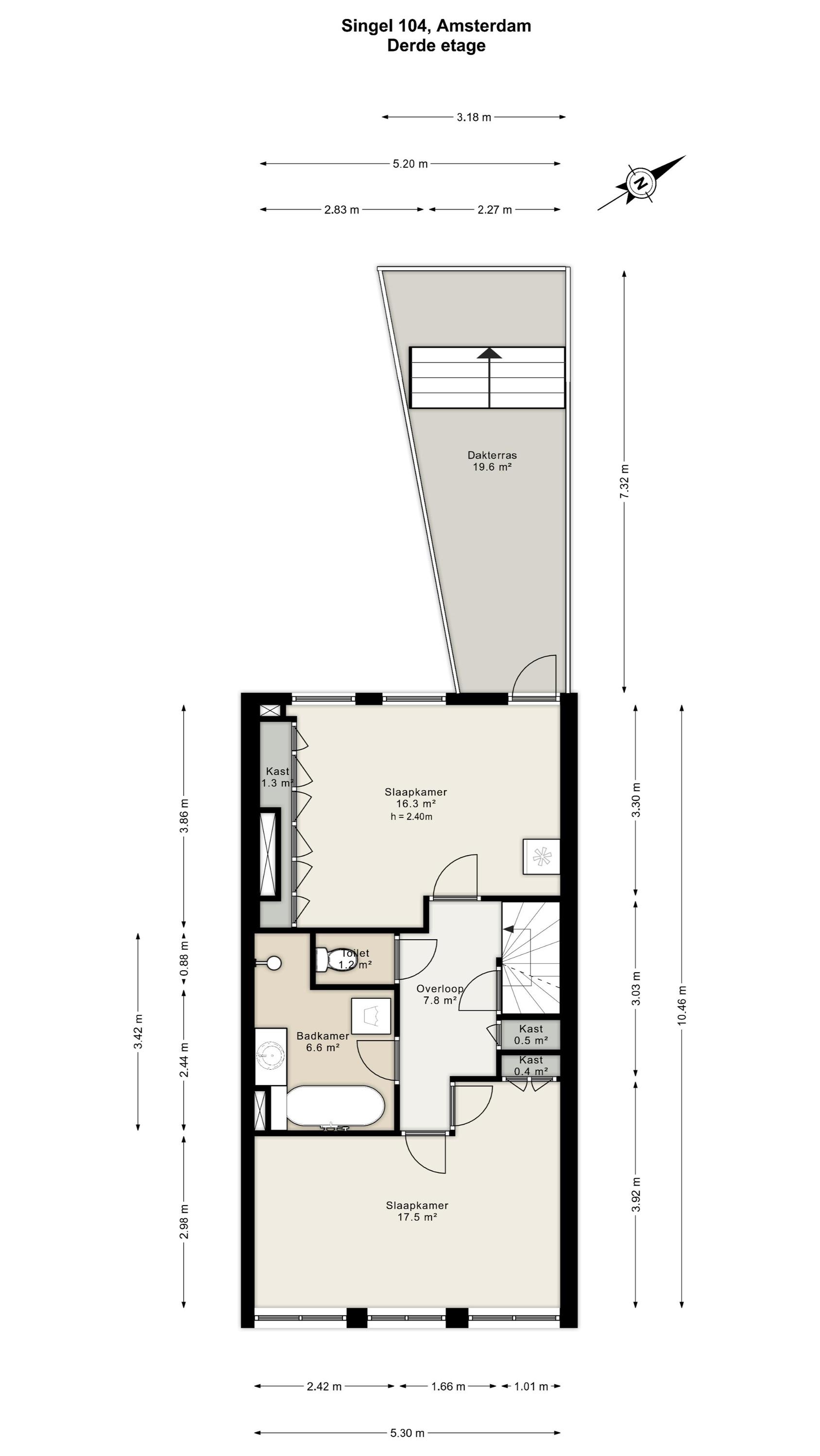
المساحات السطحية والحجم
مساحة المعيشة
521 m2
مساحة داخلية أخرى
0 m2
المساحة الخارجية الملحقة بالمبنى
20 m2
الحجم بالمتر المكعب
1889 m3
حجم الأرض
111 m2
المرافق
Zonnepanelen
Natuurlijke ventilatie
Aan water
In centrum
Baerz & Co Property Brochure

كتيب

فيديوهات

Heeren Makelaars

Stadionweg 75
1077 SE Amsterdam

info@heerenmakelaars.nl
+31 204702255

www.heerenmakelaars.nl

طلب معلومات / مشاهدة

Sander Bovenkerk profile image
Sander Bovenkerk
Real estate agent