Ons kantoor is lid van Baerz & Co Luxury Homes; een internationaal platform dat exclusieve woningmakelaars met elkaar verbindt. Neem contact op met ons secretariaat voor meer informatie over het landelijke aanbod, waarvan u hieronder een selectie kunt bekijken.

ZALTBOMMEL
Tolstraat 21 - 5301 AX
هولندا

Jeanette van Haaften profile image
Jeanette van Haaften
Real Estate Agent
€1,000,000 k.k.
مساحة المعيشة
299m2
حجم الأرض
204m2
غرف نوم
3

الوصف

يقدم تاون هاوس زالتبومل توازناً نادراً بين المساحة والتراث والمرونة، مع مساحات داخلية تم ترميمها بدقة تبلغ 299 م² وشرفة على السطح بمساحة 45 م² تطل على نهر وال. يقع هذا العقار المخصص للعيش والعمل ضمن سور المدينة التاريخي ويضم ثلاث غرف نوم وحمامين موزعين على وحدتين سكنيتين متصلتين على مساحة أرض تبلغ 204 م²، مع إمكانية التقسيم شرط الحصول على التراخيص اللازمة.

تحافظ الهندسة المعمارية على طابع القرن السابع عشر، من العوارض المكشوفة إلى الدرج الحلزوني العتيق، مع تكييفها لاحتياجات الحياة العصرية من خلال مطبخ حديث لعام 2020 وحمامات فاخرة وعزل مطور بالكامل. يميز الضوء الطبيعي والأسقف العالية والإيقاع الهادئ كل طابق: يشكل المطبخ الواسع محور تجمع العائلة، وينعم الأتيليه المشمس أو الاستوديو بمساحة تبلغ تقريباً 65 م²، مما يوفر مساحة سخية للإبداع والعمل. ترتفع غرفة المعيشة بأسقف تصل إلى 6.5 متر، موفرة اتصالاً بين الراحة الداخلية والهدوء الخارجي عبر أبواب مزدوجة تفتح إلى الشرفة المصممة بعناية، حيث تمتد الإطلالات نحو النهر وتحف أشجار الزيتون الصباحات الهادئة.

يضيف تولسترات 21 مساحة استوديو منفصلة مع عزل صوتي ومدخل خاص، مما يجعله مثالياً كمعرض فني أو مشغل. تؤكد تصنيف الطاقة C على الترقيات المدروسة والتي تشمل العزل للسقف والجدران، والزجاج عالي الكفاءة، والتدفئة الأرضية في بعض الغرف، وتسع عشرة لوحة شمسية. تتضمن المرافق إنترنت فائق السرعة، ونظام إنذار، والتهوية الطبيعية.

يقع العقار في شارع جانبي باتجاه واحد قريب من وسط زالتبومل النابض بالحياة، ويوفر خصوصية إلى جانب سهولة الوصول إلى المقاهي والمتاجر والمدارس والأندية الرياضية والمحطة. تقع واجهة النهر والشوارع التجارية المحلية على بعد خطوات، مما يجعل هذا المنزل مثالياً لمن يبحثون عن مساحة متعددة الاستخدامات وتراث وتواصل مع المشهد الهولندي التاريخي.

استكشف Zaltbommel مع Baerz، مستشارك الشخصي الموثوق للعقارات

الحصول على عقار مميز في زالتبومل يتطلب الوصول إلى علاقات وخبرة متعمقة تتجاوز العقارات المعروضة للعلن. يدعم المستشارون العملاء بالمعرفة المحلية ويفتحون الأبواب للفرص السرية، ويوجهون التفاوض، ويضمنون الدقة في جميع مراحل العملية.

تجنب الأخطاء الشائعة

غالبًا ما يضيع المشترون الدوليون وقتًا ثمينًا على قوائم مكررة أو قديمة أو مضللة عبر الإنترنت، خاصة وأن ما يقرب من 30% من المنازل الفاخرة لا تظهر أبدًا في السوق العام. يمثل وكلاء البائعين مصالح البائع، وليس المشتري. حتى طلب معلومات عن عقار يمكن أن يؤدي إلى تسجيل وكيل البائع لك كـ "عميل" دون موافقتك.
مع بايرز فايندرز ومستشارو العقارات، تتجنب كل هذه الأخطاء تمامًا. نحن نعمل فقط نيابة عنك، ونقدم تمثيلًا مستقلًا، وإرشادات واضحة والوصول إلى جميع العقارات المتاحة، بما في ذلك الفرص خارج السوق التي لا يراها الآخرون أبدًا.

مهتم بمستشار عقارات شخصي؟

نحن نعرض لك جميع المنازل المتاحة في مكان واحد. لا تتردد في الاتصال بنا لمعرفة كيف يمكننا تلبية احتياجاتك وحماية مصالحك بشكل حصري.

الميزات

ألواح شمسية
نظام إنذار
نقل الملكية
السعر المطلوب
€ 1.000.000 k.k.
الحالة
beschikbaar
القبول
in overleg
البناء
نوع المنزل
Herenhuis
نوع المبنى
tussenwoning
فترة البناء
1750
تصنيف الطاقة
C
نوع السقف
samengesteld dak
غرف نوم
3
حمامات
2
المساحات السطحية والحجم
مساحة المعيشة
299 m2
مساحة داخلية أخرى
15 m2
المساحة الخارجية الملحقة بالمبنى
45 m2
الحجم بالمتر المكعب
1265 m3
حجم الأرض
204 m2
المرافق
Alarminstallatie
Dakraam
Glasvezel kabel
Zonnepanelen
Natuurlijke ventilatie
Aan rustige weg
In centrum
Baerz & Co Property Brochure

كتيب

فيديوهات

بانوراما 360 درجة

360°
360 Panorama - Tolstraat 21
360°
360 Panorama - Tolstraat 21
360°
360 Panorama - Tolstraat 21
360°
360 Panorama - Tolstraat 21

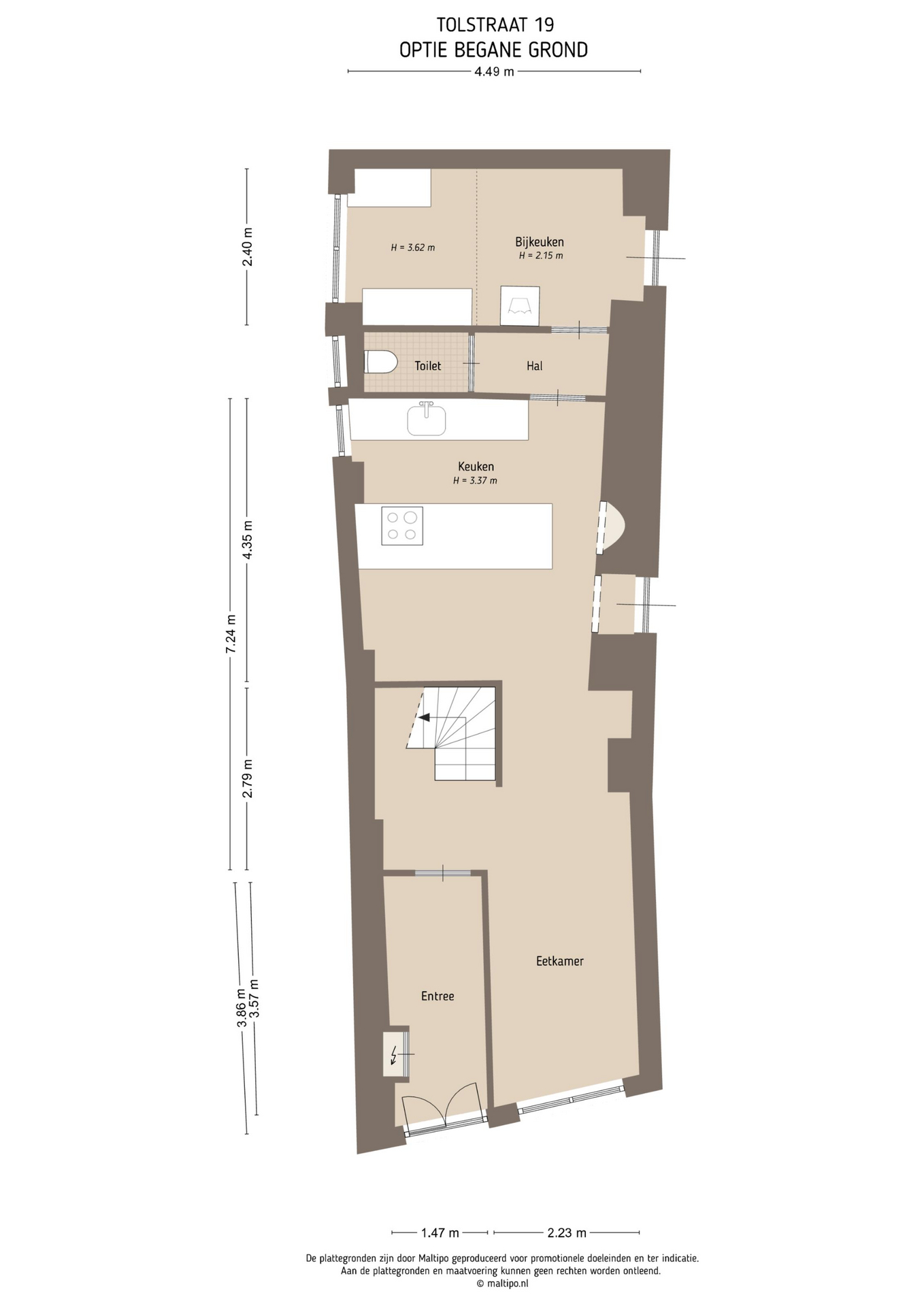
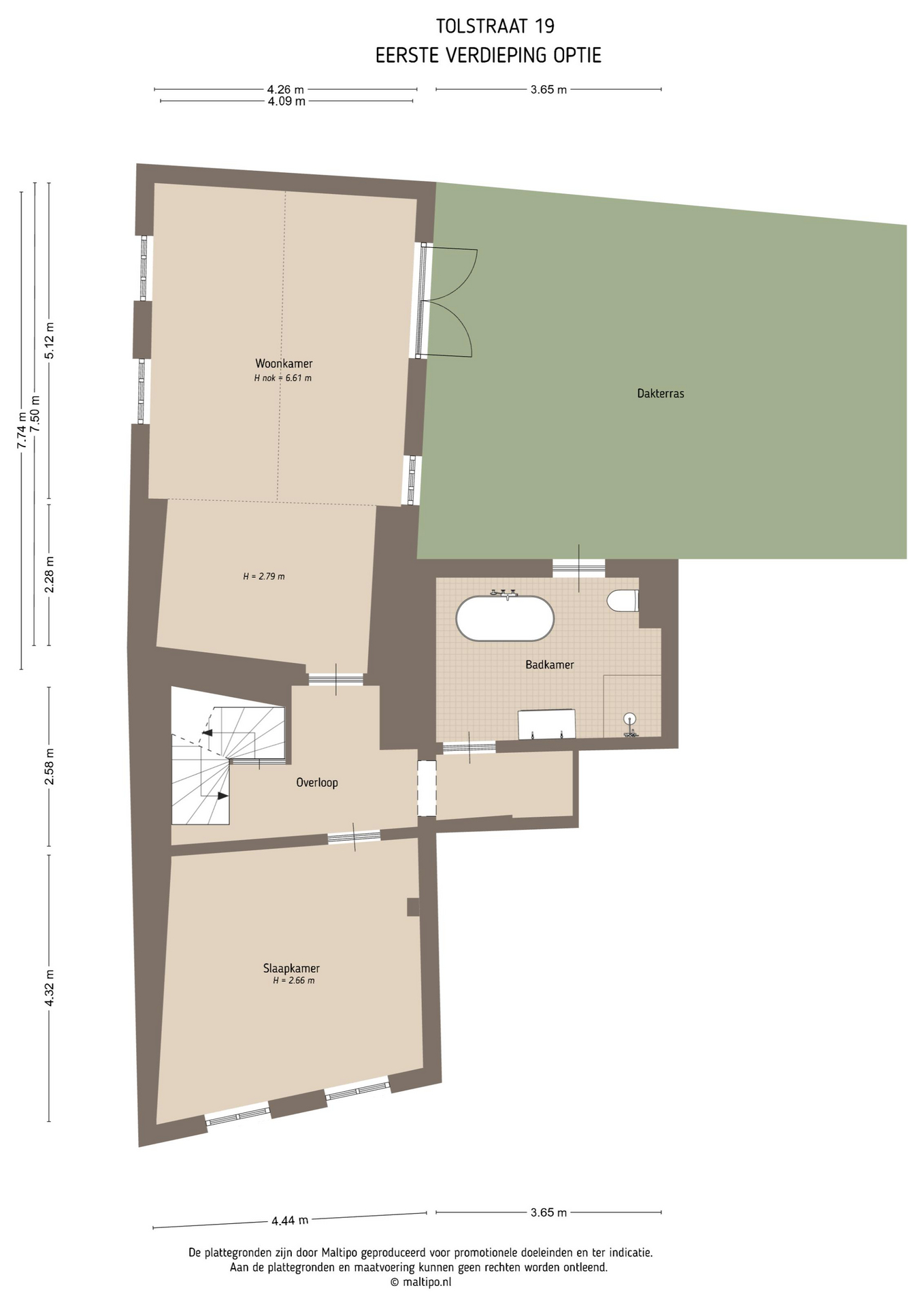
مخططات الطوابق

Bijzonder Wonen Makelaardij

Heilige Geeststraat, 11
5301CP Zaltbommel

info@bijzonderwonen.com
+31 41 868 00 50

www.bijzonderwonen.com

طلب معلومات / مشاهدة

Jeanette van Haaften profile image
Jeanette van Haaften
Real Estate Agent