 
	        		Cannenburg 3, 1081 GT, Amsterdam
Exceptionally wide and spacious family home of approximately 159 m², featuring a generous front and back garden, ideally located in the green and peaceful Buitenveldert neighbourhood. The property offers a bright and spacious living room, a fully equipped kitchen, three comfortable bedrooms, a bathroom with bathtub, and a private garage. The basement provides additional living space and can easily serve as a second living room, playroom, or home office — a versatile extension of the home.
Location & Accessibility
Living on Cannenburg means enjoying peace, space, and greenery, while being just moments away from the vibrant city life of Amsterdam. The house is situated in the sought-after Buitenveldert area, a quiet and well-maintained neighbourhood with a village-like atmosphere and excellent amenities. Within walking distance, you’ll find Gelderlandplein, offering a wide range of shops, supermarkets, luxury boutiques, and lively restaurants and cafés. Nearby favourites include NENI, Vascobelo, and Café Zuid – perfect spots for a sunny coffee, a business lunch, or a relaxed dinner. For nature lovers, both the Amstelpark and Amsterdamse Bos are just minutes away, ideal for walking, running, or a picnic in the greenery. Families will appreciate the variety of schools in the area, including the International School, located just 100 metres from the property. The home is also conveniently close to the Zuidas, Amsterdam’s international business district, where living, working, and leisure seamlessly come together. Accessibility is excellent — with Station Zuid and the A10 ring road around the corner, you can reach the city centre, Schiphol Airport, or major routes towards The Hague and Utrecht in no time. Parking is easy with a resident’s permit, often directly in front of the house.
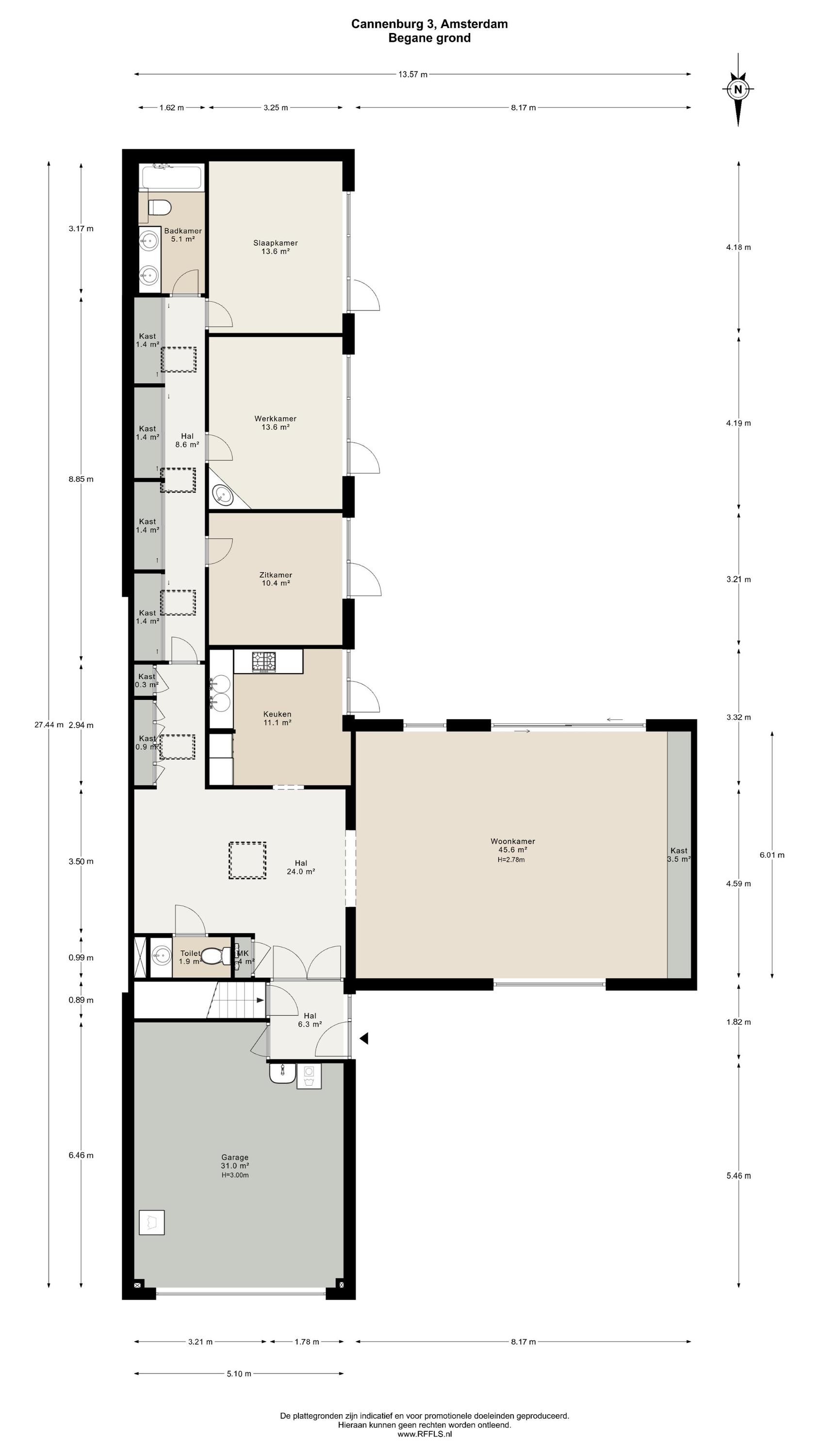
Layout
The home is accessed through the green front garden. Upon entering, a small hallway connects to the garage at the front. This spacious garage, equipped with an electric door, provides parking for two cars. The central hallway — illuminated by a skylight — connects all rooms of the house. The living room forms the heart of the home, featuring large windows and sliding doors opening onto the generous south-facing garden of approximately 116 m², offering abundant sunlight and privacy. The living room is also fitted with air conditioning. The kitchen is fully equipped with high-end built-in appliances, including a four-burner induction cooktop with integrated extractor, oven, dishwasher, and fridge-freezer combination. Through the extended hallway, you’ll find three well-proportioned bedrooms, each with direct access to the rear garden. The master bedroom, located at the end of the hall, also features an air conditioning unit. Adjacent is the bathroom, fitted with a double washbasin with cabinet, toilet, and bathtub. Along the hallway are several built-in closets, providing practical storage space. A staircase leads down to the basement, currently used as an additional living area complete with a built-in bar — an ideal space for relaxation or entertainment.
Details:
- Living area: approx. 159 m² (measured in accordance with NEN2580)
- Three well-sized bedrooms
- Basement of approx. 37 m²
- Front and rear garden (total approx. 179 m²)
- Fitted with double glazing
- Air conditioning installed
- Garage with electric door and space for two cars
- Right of leasehold: current period from 08-11-2021 to 15-09-2038. General Provisions 1955 (AB1955). Fixed ground rent: € 554.97.
- Transition to perpetual leasehold (General Provisions 2016 – AB2016) was recorded by the notary on 8 November 2021. Annual ground rent as of 16-09-2038: € 6.035,58 excluding inflation.
- Asbestos, age and non-occupancy clauses apply
- Delivery in consultation
This information has been compiled with great care. However, no liability is accepted for any incompleteness, inaccuracies, or the consequences thereof. All stated dimensions and surface areas are indicative. Buyers are responsible for conducting their own investigation into all matters that are of importance to them.With regard to this property, the selling agent acts on behalf of the seller. We recommend engaging a qualified (NVM) real estate agent to guide you through the purchasing process. If you have specific requirements regarding the property, please communicate these to your purchasing agent in good time and ensure they are independently verified. If you choose not to engage a professional representative, you are deemed sufficiently expert by law to oversee all matters of importance yourself.
