Baerz & Co is een landelijk samenwerkingsverband van zorgvuldig geselecteerde boutique luxury makelaars. Samen vormen wij één netwerk, met één gedeeld aanbod. De woningen die u op onze website ziet, zijn afkomstig van alle aangesloten kantoren binnen Baerz & Co. Daardoor is niet ieder object rechtstreeks door ons kantoor in verkoop, maar door een gespecialiseerde collega binnen ons netwerk. Heeft u een woning gevonden die u aanspreekt en wilt u meer informatie? Dan brengen wij u graag persoonlijk in contact met de betreffende verkoopmakelaar, zodat u direct en zorgvuldig wordt begeleid.

AMSTERDAM
Prinsengracht 246 H - 1016 HE
Netherlands

Romy van de Leygraaf profile image
Romy van de Leygraaf
Real Estate Agent
€1,395,000 k.k.
Living Area
129m2
Plot Size
N/A
Bedrooms
3

Description

Prinsengracht 246H, 1016 HE Amsterdam

Situated on the Prinsengracht, in the heart of the Jordaan and right next to the popular Nine Streets, this stylish ground-floor residence of approx. 129 m² offers three bedrooms and a spacious roof terrace of approx. 37 m². The property forms part of a historic building that once housed the first Dutch hat factory, a unique piece of Amsterdam heritage that adds extra character to the location.

Beautifully renovated with high-quality materials, the home combines modern comfort with a warm, contemporary atmosphere and authentic details. Its exceptional interior did not go unnoticed: the apartment has been featured in international interior magazines and appeared on RTL Woonmagazine. A home with a story and an impressive sense of style.

Layout

Ground Floor

Through the private entrance on the Prinsengracht, you enter an exceptionally bright and inviting living space where authentic features blend seamlessly with modern comfort. The high ceilings with exposed wooden beams and the large windows offering beautiful canal views immediately catch the eye.

At the centre of this floor is the spacious kitchen-diner of approx. 39 m², fitted with a large cooking island and luxury built-in appliances including a dishwasher, 5-burner gas hob, fridge-freezer, microwave and oven. Warm wood elements, a stone worktop and sleek design give the kitchen a high-end and welcoming look. The island provides generous workspace, and the custom-made cabinetry offers ample storage. At the front, there is plenty of room for a large dining table, perfect for long dinners, drinks and cosy evenings with friends and family.

Connected to the kitchen is the atmospheric living room, located at the rear of the home. A skylight brings in abundant daylight, allowing the space to feel open and airy despite its deeper position. The living room includes a fireplace and offers enough room for a generous seating arrangement.

This floor also includes a hallway and a separate toilet with washbasin.

First Floor

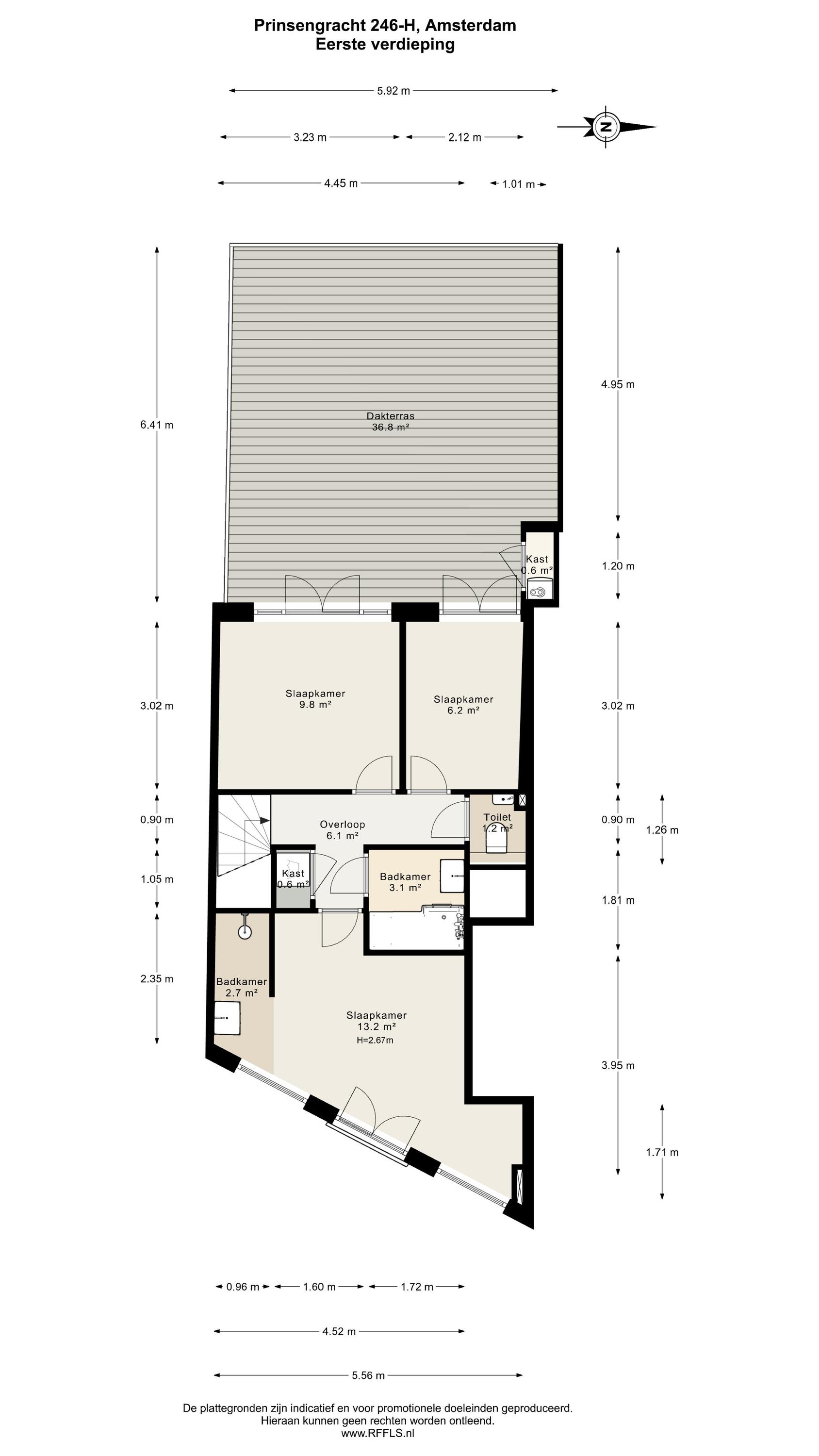
The staircase at the front leads to the first floor. At the front of the house lies the spacious primary bedroom, featuring large windows and French doors overlooking the canal. The room is warmly styled with a wooden feature wall and offers additional space for a work area. Adjoining the bedroom is a modern bathroom equipped with a walk-in shower, vanity unit and high-quality finishes.

At the rear are two further comfortable rooms. The second bedroom provides access to the large roof terrace and is ideal as an additional bedroom, guest room or home office. The third room is currently used as a luxurious walk-in closet with custom-built wardrobes but can easily be converted back into a bedroom.

The second bathroom on this level features a bathtub with shower and a vanity unit. There is also a separate toilet and a dedicated laundry room with space for a washing machine and dryer.

Roof Terrace

The wonderful roof terrace of approx. 37 m² is a unique feature of this home. It can be accessed from the rear bedroom as well as via the staircase in the kitchen-diner. Its peaceful position makes it an exceptional outdoor space in the middle of the city—a private place to unwind and enjoy the tranquillity.

Location & Accessibility

The property is located in an exceptional spot on the Prinsengracht, in the sought-after Jordaan and directly adjacent to the vibrant Nine Streets. This part of the canal belt is known for its quintessential Amsterdam charm, picturesque streets and a wide range of boutique shops, cafés, restaurants and cultural hotspots. Daily groceries can be found nearby on the Elandsgracht, and the Westerstraat, Haarlemmerstraat and Leidsestraat are all within easy reach.

Culturally, the area has much to offer: the Anne Frank House, Westerkerk, Museumhuis Bartolotti, the DeLaMar Theatre and the Stadsschouwburg are all within walking distance. The Vondelpark and Leidseplein are also close by, ideal for those seeking both tranquillity and vibrancy.

Connectivity is excellent. Several tram and bus lines are only a short walk away, allowing easy access to all parts of the city. Amsterdam Central Station is just minutes away by bike, and the S100 and S105 provide quick routes to the A10 ring road.

Prinsengracht

The name refers to the “princely title” associated with the Princes of Orange. The Prinsengracht is one of Amsterdam’s three main canals and was dug in 1612 as part of the city’s expansion, initially running from the Brouwersgracht to the Leidsegracht. In 1658, it was extended beyond the Amstel to the Entrepotdok. (Source: Stadsatlas Amsterdam)

Details
- Apartment right of approx. 129 m² (measured according to NEN 2580);
- Roof terrace of approx. 37 m², west-facing;
- Three bedrooms;
- Located within UNESCO World Heritage Zone;
- Listed as a protected cityscape;
- Video intercom throughout the home;
- Located on freehold land (no leasehold);
- Healthy and active Homeowners’ Association, professionally managed by Delair Vastgoedbeheer;
- Monthly contribution: € 300,48;
- Completion in consultation.

We have gathered this information with the greatest of possible care. However, we will not accept any liability for any incompleteness, inaccuracy or any other matter nor for the consequences of such. All measurements and surfaces stated are indicative. The purchaser has a duty to investigate any matter that may be of importance to him or her. The estate agent is the adviser to the seller with regard to this residence. We advise you to engage an expert (NVM registered) estate agent who will guide you through the purchasing process. Should you have any specific desires with regard to the residence, we advise you to make these known as soon as possible to your purchasing estate agent and have an independent investigation carried out into such matters. If you do not engage an expert, you will be deemed as considering yourself to be sufficiently expert to be- to oversee all matters that could be important. The NVM conditions apply.

Features

Transfer of ownership
Asking Price
€ 1.395.000 k.k.
Status
beschikbaar
Acceptance
in overleg
Construction
Kind of house
Benedenwoning
Building type
appartement
Construction period
1910
Bedrooms
3
Bathrooms
2
Surface Areas And Volume
Living Area
129 m2
Other indoor space
1 m2
Exterior space attached to the buildinge
37 m2
Volume in cubic meters
495 m3
Facilities
Mechanische ventilatie
Tv kabel
Natuurlijke ventilatie
In centrum
Aan vaarwater
Baerz & Co Property Brochure

Brochure

Videos

Floor Plans

Leygraaf Makelaars

Kennemerstraatweg 67
1814 GC Alkmaar

romy@leygraafmakelaars.nl
+31 725114318

www.leygraafmakelaars.nl

Information / Viewing request

Romy van de Leygraaf profile image
Romy van de Leygraaf
Real Estate Agent

Buying a Luxury Property in Amsterdam

Amsterdam offers a cosmopolitan lifestyle defined by heritage, connectivity, and discreet luxury. Residents benefit from a robust international community, curated services, and vibrant culture. The city’s enduring appeal lies in its blend of history, sophistication, and progressive spirit.