In a prime location in "de Bovenstad" — the most sought-after part of Gorinchem’s historic city centre — stands this stately former headmaster’s residence, featuring a broad, sun-filled garden and a spacious outbuilding with rear access (59 m²) that currently serves as storage or workshop space.
An impressive vestibule and hallway with original wall and floor tiles set the tone, leading to a living room with fireplace, an adjoining garden room, a bright Siematic kitchen overlooking the garden, and a study on the ground floor.
Upstairs, the light-filled landing gives access to three double bedrooms — one with wardrobe wall, fireplace and balcony — a laundry room, a fully equipped bathroom, and a separate toilet.
Gross volume: 880 m³
Living area: 215 m²
Plot size: 340 m²
Construction period: 16th century
Listed as a municipal monument
To live on the Kalkhaven is to experience the charm of de Bovenstad, within Gorinchem’s fortified city walls. Everyday amenities, boutique shops, and a wide range of restaurants and cafés are all within walking distance, while nature is only minutes away.
With around 39,000 inhabitants, Gorinchem is large enough to offer every convenience yet small enough to remain intimate. Culture lovers will find two theatres and an arthouse cinema within the city, with a large multiplex only a short cycle away. Sports enthusiasts are well catered for too, with clubs for hockey, padel, football, tennis, fitness, and a large indoor swimming pool. The surrounding countryside is ideal for runners and cyclists.
There is a wide range of schools and childcare facilities both in and around the city centre, including secondary schools up to pre-university level. The train station is just an eight-minute bike ride away, and the city’s proximity to the A15 and A27 motorways ensures excellent road connections.
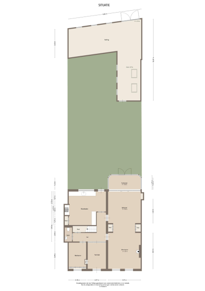
Layout – Ground floor
Behind the elegant façade, the original panelled front door opens into a vestibule of rare grandeur — with its high ornamental ceiling, finely detailed woodwork, and beautifully preserved etched glass. The marble floor and original wall tiles remain intact.
A 19th-century staircase leads from the rear hall to the upper floor. From this hall, panelled doors open to the living room, study, kitchen, cellar cupboard and toilet. The floor is laid with authentic patterned tiles.
The light and airy kitchen features a Siematic kitchen unit with various built-in appliances and a deep, solid natural-stone countertop in one piece. Beneath the original mantel sits a stainless-steel Boretti stove. From the worktop there is a lovely view of the garden, and the space easily accommodates a large dining table. A wide door opens directly to the terrace.
To the right of the hall lies the living room, with ceilings over three metres high, a fireplace with a working flue, and custom cabinetry replacing the former ensuite doors. An additional built-in cupboard occupies the former passage to the old school.
At the rear, a heated garden room with tiled floor can be closed off with glass sliding doors — ideal as a playroom or second sitting area.
The study, situated at the front, overlooks the street and green space. It features oak flooring and built-in cabinetry below the windows. Historically, this room served as the waiting room for the physician whose practice was located on the first floor.
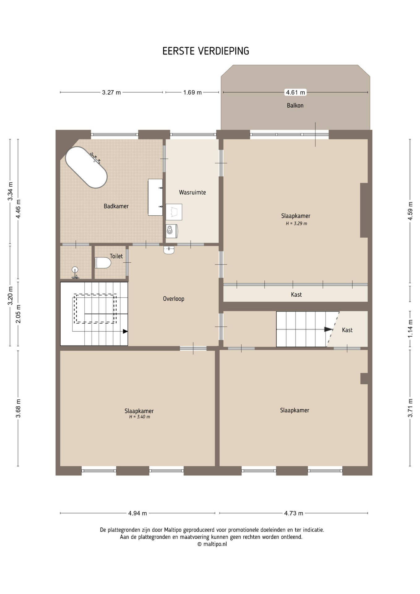
Layout – First floor
The landing on the first floor is bathed in daylight thanks to a large roof light. Elegant three-panel doors open onto the adjoining rooms. Two bedrooms at the front overlook the green square. In the vestibule of one of these rooms, preparations have been made for a staircase — a remnant of earlier plans to add a second storey.
At the rear lies the main bedroom, complete with antique fireplace, decorative plaster ceiling, fitted wardrobe and balcony. Adjacent is the laundry room with connections for washing machine, dryer, and central heating boiler.
The bathroom is fully equipped with a bathtub, walk-in shower, double washbasin, and underfloor heating. A separate toilet is located off the landing.
Additional features
Behind the house lies a unique garden, 9.5 metres wide and 15 metres deep, facing east and south — offering both sunny and shaded spots throughout the day. In 2021, the owners were able to extend the plot, creating space for a large, tiled outbuilding (59 m²). This building is ideal for use as a garage for a classic car or boat, or as an artist’s studio. The double doors open onto the private parking area behind the house.
The property has been lovingly maintained over the past 25 years. It is heated by a high-efficiency boiler (2020), and the insulated roof is fitted with twelve solar panels. At the front, the ground-floor windows have insulating monument glass, while the upper floor features HR++ glazing.
Some 25 years ago, the owners explored the possibility of adding an extra storey. The municipality responded positively at the time, and the architectural drawings remain available for review (without rights attached). The prepared staircase for such an extension still exists.
The history of "de Bovenstad"
De Bovenstad — the oldest part of Gorinchem’s city centre — arose as an elevated expansion in the late 16th century. It developed into a lively neighbourhood of merchants, shipowners, and craftsmen who benefited from its proximity to the water. Shipyards, warehouses, and workshops once thrived here, and the harbour brought both prosperity and bustle.
The core of the house at Kalkhaven 23 dates back to around 1580. Around 1900, the harbour and the house took on their current appearance.
Today, this is one of the most desirable residential areas in Gorinchem: a historic quarter with an authentic city atmosphere and every amenity close at hand.
Living here means enjoying the best of both worlds — the tranquillity of a fortified riverside town, and the vibrancy of a lively city centre just around the corner.