Ons kantoor is lid van Baerz & Co Luxury Homes; een internationaal platform dat exclusieve woningmakelaars met elkaar verbindt. Neem contact op met ons secretariaat voor meer informatie over het landelijke aanbod, waarvan u hieronder een selectie kunt bekijken.

KAAG
Nassaulaan 12 - 2159 LR
Netherlands

Romy van de Leygraaf profile image
Romy van de Leygraaf
Real Estate Agent
€1,975,000 k.k.
Living Area
347m2
Plot Size
496m2
Bedrooms
3

Description

Luxury detached villa on Kaageiland

On a great location on the idyllic Kaageiland lies this luxury detached villa with indoor pool , located on open water but also with a beautiful view over the countryside. Here peace, space and luxury come together in a house with all imaginable comforts.
• Located on water
• Very spacious living room
• 3 bedrooms
• Swimming pool and spa
• Decking terrace with jetty

Built in 2010, living area 347m2, roof terrace 25m2, contents 1,167m3 , plot 496m2

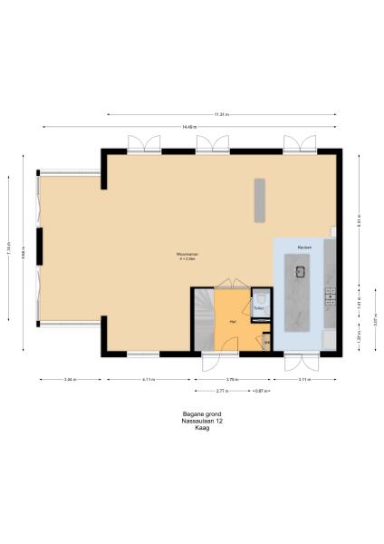
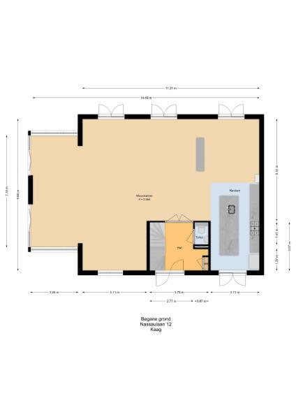
Coming in is coming home
Through the bright entrance you enter a spacious, bright living room with a cozy gas fireplace. The luxurious harmonica doors not only provide a sea of light, but harmoniously connect the interior space with the spacious deck terrace on the water.
Cooking in style
The live-in kitchen is a dream for the cooking enthusiast. Equipped with a central sink island and high-quality built-in appliances, this kitchen is perfect for cozy dinners or long evenings of dining.

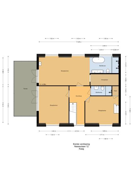
2nd floor
The home features three spacious bedrooms and two modern bathrooms, ideal for a family or guests. All around there is a beautiful view over the meadows or the water. Everything is stylishly decorated with an eye for detail and comfort.

Basement
The house has a basement and houses a lovely indoor pool. In addition, the basement offers plenty of extras such as wellness and space for hobbies or storage.
The garden, outdoor living at its best
In the spacious front garden you can enjoy the vast landscape and the sun. There is also parking for the car. Sheltered, you will also find a Jacuzzi for ultimate relaxation.
The plastic deck terrace at the rear has several seating areas and a jetty for direct access to the water of the Kagerplassen. Here you can enjoy the view, the evening sun and sail to the open water in no time.

1st floor
The home features three spacious bedrooms and two modern bathrooms, ideal for a family or guests. All around there is a beautiful view over the meadows or the water. Everything is stylishly decorated with an eye for detail and comfort.

Basement
The house has a basement and houses a lovely indoor pool. In addition, the basement offers plenty of extras such as wellness and space for hobbies or storage.
The garden, outdoor living at its best
In the spacious front garden you can enjoy the vast landscape and the sun. There is also parking for the car. Sheltered, you will also find a Jacuzzi for ultimate relaxation.
The plastic deck terrace at the rear has several seating areas and a jetty for direct access to the water of the Kagerplassen. Here you can enjoy the view, the evening sun and sail to the open water in no time.

The garden, outdoor living at its best
In the spacious front garden you can enjoy the vast landscape and the sun. There is also parking for the car. Sheltered, you will also find a Jacuzzi for ultimate relaxation.
The plastic deck terrace at the rear has several seating areas and a jetty for direct access to the water of the Kagerplassen. Here you can enjoy the view, the evening sun and sail to the open water in no time.

Sustainability
• The house was built in 2010 and is therefore fully insulated.
• Insulating glazing
• There is energy label C registered

Location
Located on an idyllic island in the middle of the Kagerplassen with the A44 in the vicinity is the major cities, Schiphol and the beach within easy reach.

Details:
• Detached villa in unique location on Kaageiland
• The whole house has underfloor heating and air conditioning
• Located directly on water and with views over the countryside
• Spacious living room with gas fireplace and luxury harmonica doors
• Luxury kitchen with sink island and appliances
• 3 bedrooms and 2 bathrooms
• Heated pool and wellness in the basement
• Plastic deck terrace and jetty
• Water softener
• Alarm system

A viewing is more than worth it.
Call our office for an appointment

Features

Swimming pool
Solar panels
Alarm system
Air conditioning
Transfer of ownership
Asking Price
€ 1.975.000 k.k.
Status
beschikbaar
Acceptance
in overleg
Construction
Kind of house
Villa
Building type
vrijstaande woning
Construction period
2010
Energy rating
C
Roof type
zadeldak
Bedrooms
3
Bathrooms
3
Surface Areas And Volume
Living Area
347 m2
Other indoor space
0 m2
Exterior space attached to the buildinge
25 m2
Volume in cubic meters
1167 m3
Plot Size
496 m2
Facilities
Alarminstallatie
Zwembad
Airconditioning
Rookkanaal
Sauna
Glasvezel kabel
Zonnepanelen
Aan water
Aan rustige weg
In woonwijk
Vrij uitzicht
Aan vaarwater
Baerz & Co Property Brochure

Brochure

Videos

Floor Plans

Leygraaf Makelaars

Kennemerstraatweg 67
1814 GC Alkmaar

romy@leygraafmakelaars.nl
+31 725114318

www.leygraafmakelaars.nl

Information / Viewing request

Romy van de Leygraaf profile image
Romy van de Leygraaf
Real Estate Agent

Buying a Luxury Property in Kaag

Kaag offers refined waterside living, a warm local community, and discreet advisory services for global buyers. Its island charm, cultural vibrancy, and proximity to key Dutch cities make it a preferred choice for astute families and investors.