Ons kantoor is lid van Baerz & Co Luxury Homes; een internationaal platform dat exclusieve woningmakelaars met elkaar verbindt. Neem contact op met ons secretariaat voor meer informatie over het landelijke aanbod, waarvan u hieronder een selectie kunt bekijken.

LEIDEN
Dwars Koornbrugsteeg 8 - 2311 EL
Netherlands

Michiel de Jong RM profile image
Michiel de Jong RM
NVM Register Makelaar - Partner
€1,375,000 k.k.
Living Area
332m2
Plot Size
204m2
Bedrooms
8

Description

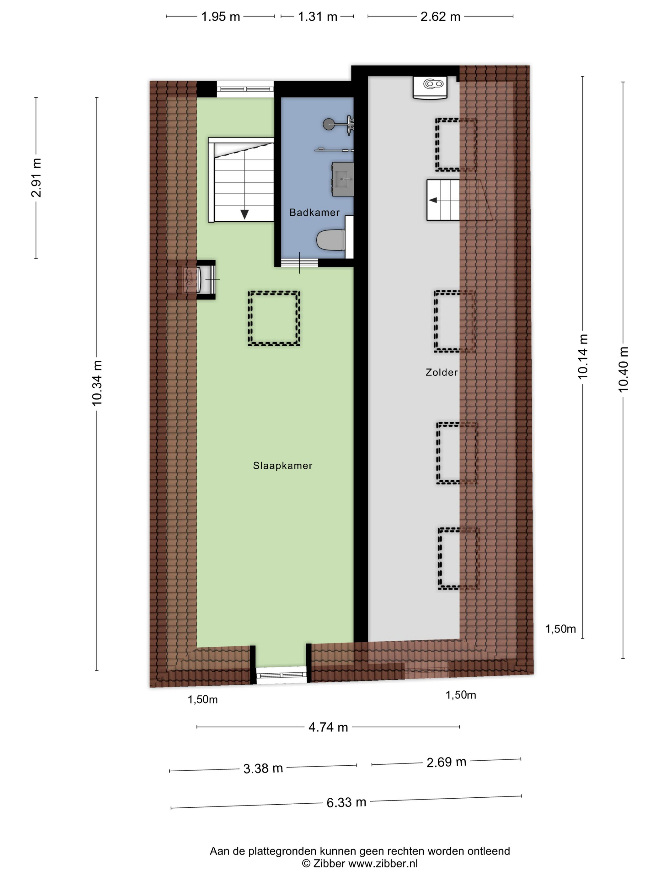
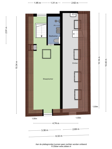
This monumental house Leiden occupies an exceptional position in the historic heart of the city, its facade opening to captivating Rhine views. The property unites two front houses and a tranquil rear residence, now seamlessly reconfigured as one layered, flexible home. Spread across 332 m², the residence comprises seven bedrooms, five with en suite bathrooms, offering privacy and comfort to each occupant and guest. Natural light fills each generous room, and high ceilings contribute to a sense of volume and calm.

Three distinct roof terraces, including a spacious one adjacent to the kitchen and dining area, offer unusual outdoor space for city living. The house’s dual kitchens—one especially suited for culinary enthusiasts—extend an invitation to enjoy Leiden’s renowned market and local purveyors, placed within a short stroll from the entrance. abounding storage is found in the basement, cellar, and attic, enabling a refined level of order and possibility.

Architecturally significant, this property is registered as a national monument and sits within a protected cityscape. Modern amenities—mechanical ventilation, fibre optic cable, TV, and partial double glazing—subtly complement its period features. The division act will convert the home into a single apartment, with an independent technical inspection available to prospective buyers. This house is more than a residence, it is a statement of presence in one of Leiden’s most storied quarters. For those seeking a luxury house for sale in Leiden that respects both legacy and modern life, this property offers a singular invitation.

Explore Leiden with Baerz, Your Trusted Personal Property Finder & Advisor

Navigating Leiden’s market requires nuanced understanding of local traditions, regulatory frameworks, and discreet off-market offerings. Distinguished advisors bring access to exclusive portfolios, adept negotiation, and holistic guidance on structuring transactions. Their ability to anticipate shifting trends, identify rare opportunities, and protect client interests ensures strategic advantage and peace of mind throughout the acquisition process.

Features

Transfer of ownership
Asking Price
€ 1.375.000 k.k.
Status
beschikbaar
Acceptance
in overleg
Construction
Kind of house
Grachtenpand
Building type
tussenwoning
Construction period
1650
Roof type
samengesteld dak
Bedrooms
8
Bathrooms
5
Surface Areas And Volume
Living Area
332 m2
Other indoor space
49 m2
Exterior space attached to the buildinge
26 m2
Volume in cubic meters
1400 m3
Plot Size
204 m2
Facilities
Mechanische ventilatie
Tv kabel
Rookkanaal
Glasvezel kabel
Aan water
In centrum
In woonwijk
Vrij uitzicht
Baerz & Co Property Brochure

Brochure

Videos

Floor Plans

Graal Makelaardij

Rapenburg 4
2311 EV Leiden

info@graalmakelaardij.nl
+31 (0)71 51 61 000

www.graalmakelaardij.nl

Information / Viewing request

Michiel de Jong RM profile image
Michiel de Jong RM
NVM Register Makelaar - Partner