 
	        		 
								Unique and very charming monumental top-floor apartment with a large roof terrace in the historic heart of Leiden
This beautiful and surprising canal house is situated on the Nieuwe Rijn, in the vibrant heart of Leiden. A unique place to live with plenty of space and character. And all just a stone's throw from everything that makes city living so appealing: charming shops, the weekly market, terraces, restaurants, museums, and theaters.
This classic property (Rijksmonument) offers a living area of ??no less than 181 m² plus a roof terrace of approximately 75 m² and combines historic allure with contemporary comfort. The house is well-maintained and largely equipped with double glazing and roof insulation, ensuring a pleasant living environment year-round. A building inspection report is available.
What also makes this property unique is the remarkable combination of a stately, classic façade on the canal side (three windows wide, facing south) and a surprisingly spacious rear garden of over nine meters. On the first floor, at the heart of the house, lies a colorful courtyard garden, and a dozen steps up, a spacious and sunny roof terrace with plenty of privacy and several seating areas.
LAYOUT
Ground floor:
Entrance, landing, stairs to the first floor.
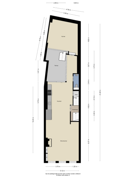
First floor:
Charming and bright living room with an inviting fireplace and beautiful canal views. Open to the spacious kitchen/diner, equipped with all the usual appliances. Sliding doors provide access to the green, sheltered courtyard garden; an oasis of tranquility in the heart of the city. Separate toilet with a hand basin. From the landing, access to a second, charming multifunctional (living) room.
Second floor:
Very spacious master bedroom with en-suite bathroom featuring a bathtub with Jacuzzi, double shower, toilet, and double sink. French doors open onto the large roof terrace, spread over several levels: a sunny and private space with various seating options.
Third floor:
Landing with access to a charming bedroom under the roof at the front, complete with a sleeping loft. At the rear is another spacious bedroom with a dormer window. The landing is large enough to accommodate a second bathroom, if desired.
All in all, an exceptional opportunity for those seeking space, style, and urban vibrancy in one of Leiden's most beautiful locations.
Would you like to view this property or receive more information? Contact us for a personal tour.
