Baerz & Co is een landelijk samenwerkingsverband van zorgvuldig geselecteerde boutique luxury makelaars. Samen vormen wij één netwerk, met één gedeeld aanbod. De woningen die u op onze website ziet, zijn afkomstig van alle aangesloten kantoren binnen Baerz & Co. Daardoor is niet ieder object rechtstreeks door ons kantoor in verkoop, maar door een gespecialiseerde collega binnen ons netwerk. Heeft u een woning gevonden die u aanspreekt en wilt u meer informatie? Dan brengen wij u graag persoonlijk in contact met de betreffende verkoopmakelaar, zodat u direct en zorgvuldig wordt begeleid.

LEIDEN
Rijnsburgerweg 26 - 2333 AA
Netherlands

€1,050,000
Living Area
210m2
Plot Size
352m2
Bedrooms
8

Description

Townhouse Leiden with deep south west garden invites a sense of architectural dignity a stone’s throw from the city’s historic heart. This residence traces its provenance to the late nineteenth century when grand homes emerged along the city’s edge, balancing proximity to Leiden’s cultural core and the restorative qualities of outdoor space.

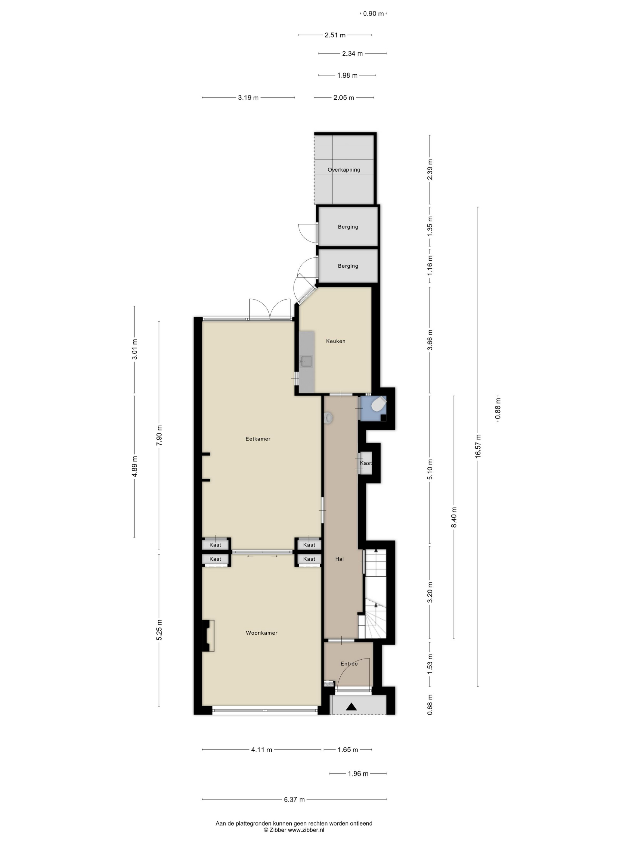
Behind its facade, the home preserves the elegance of its era: high ceilings, tall windows, generous detailing in façades, stucco, staircases, and doors. Upon entry, a marble hall with lofted ceilings and stately stairs mediates a calming transition from city pace to interior quiet. The classic living room, with original ensuite doors and ornamental ceilings, opens to a luminous eat-in area and a garden-facing conservatory. Eight bedrooms unfold across the first and second floors, with a study, walk-in closet, and flexible guest or work spaces, accommodating family living or home working.

Outside, the deep rear garden faces south west, ensuring ample sunlight yet offering shaded views from mature trees. Beyond lies a private, 1,318 m² enclosed lot, shared among neighbors, with space for children’s play, gathering, and water access. Essential amenities, schools, transit, green parks, and urban offerings lie nearby. This townhouse, a registered municipal monument, carries period character, partial double glazing, central heating, and inclusion in a residents’ association.

Features

Transfer of ownership
Asking Price
€ 1.050.000
Status
beschikbaar
Acceptance
in overleg
Construction
Kind of house
Herenhuis
Building type
tussenwoning
Construction period
1893
Roof type
mansarde dak
Bedrooms
8
Bathrooms
1
Surface Areas And Volume
Living Area
210 m2
Other indoor space
9 m2
Exterior space attached to the buildinge
6 m2
Volume in cubic meters
774 m3
Plot Size
352 m2
Baerz & Co Property Brochure

Brochure

Videos

Leygraaf Makelaars

Kennemerstraatweg 67
1814 GC Alkmaar

romy@leygraafmakelaars.nl
+31 725114318

www.leygraafmakelaars.nl

Information / Viewing request

Romy van de Leygraaf profile image
Romy van de Leygraaf
Real Estate Agent

Buying a Luxury Property in Leiden

Leiden offers exceptional heritage, dynamic culture, and curated services, creating an appealing environment for international residents. With refined homes, vibrant academia, and discreet luxury, this canal city delivers a sophisticated lifestyle for a discerning, global community.