Ons kantoor is lid van Baerz & Co Luxury Homes; een internationaal platform dat exclusieve woningmakelaars met elkaar verbindt. Neem contact op met ons secretariaat voor meer informatie over het landelijke aanbod, waarvan u hieronder een selectie kunt bekijken.

LISSE
Heereweg 304 - 2161 BV
Netherlands

Romy van de Leygraaf profile image
Romy van de Leygraaf
Real Estate Agent
€1,695,000 k.k.
Living Area
321m2
Plot Size
610m2
Bedrooms
4

Description

This very stately detached townhouse (municipal monument) with indoor large garage and driveway for 2 cars has been completely renovated while maintaining character. It is located on the most popular part of the Heereweg, in the center of the village and has been very luxuriously renovated in 2018. The monumental beech trees complete the whole picture. The attractive Square with its many terraces, elementary school and stores are within walking distance.

- Year built 1898 - Plot area: 610m² - Living space 321m², Other indoor space 62m²
- Content: 1,349m³

Ground floor
Beautiful porch in which the striking high front door, imposing long hall with the restored authentic granito floor, checkroom and toilet room and a door to the garden. To the left of the hall a very spacious living/living kitchen with luxury kitchen design in matte white, beautiful cooking and sink island with wooden breakfast bar and all appliances including a beautiful wine refrigerator. Also a cozy gas fireplace and the large rear facade with lots of glass and French doors to the garden are not lacking. To the right of the hall there is a TV/sitting room with a gas fireplace and double doors give access to the upstairs room. This upstairs room with a large custom-made closet wall is very suitable as a play/or work room and has a staircase to the large dry cellar with standing height. In the former cell complex is a beautiful study created, a storage room, a technical room and there is one cell preserved in its original state. The indoor garage is large and includes an electric segment door with wicket door and a fixed staircase to spacious storage attic.

1st Floor
Again an imposing long hall with door to balcony, 3 fantastically large bedrooms with beautiful windows, luxury bathroom with walk-in shower, bathtub and wide sink with 2 taps on wooden furniture, separate 2nd luxury toilet room and 4th very generous laundry/work room.

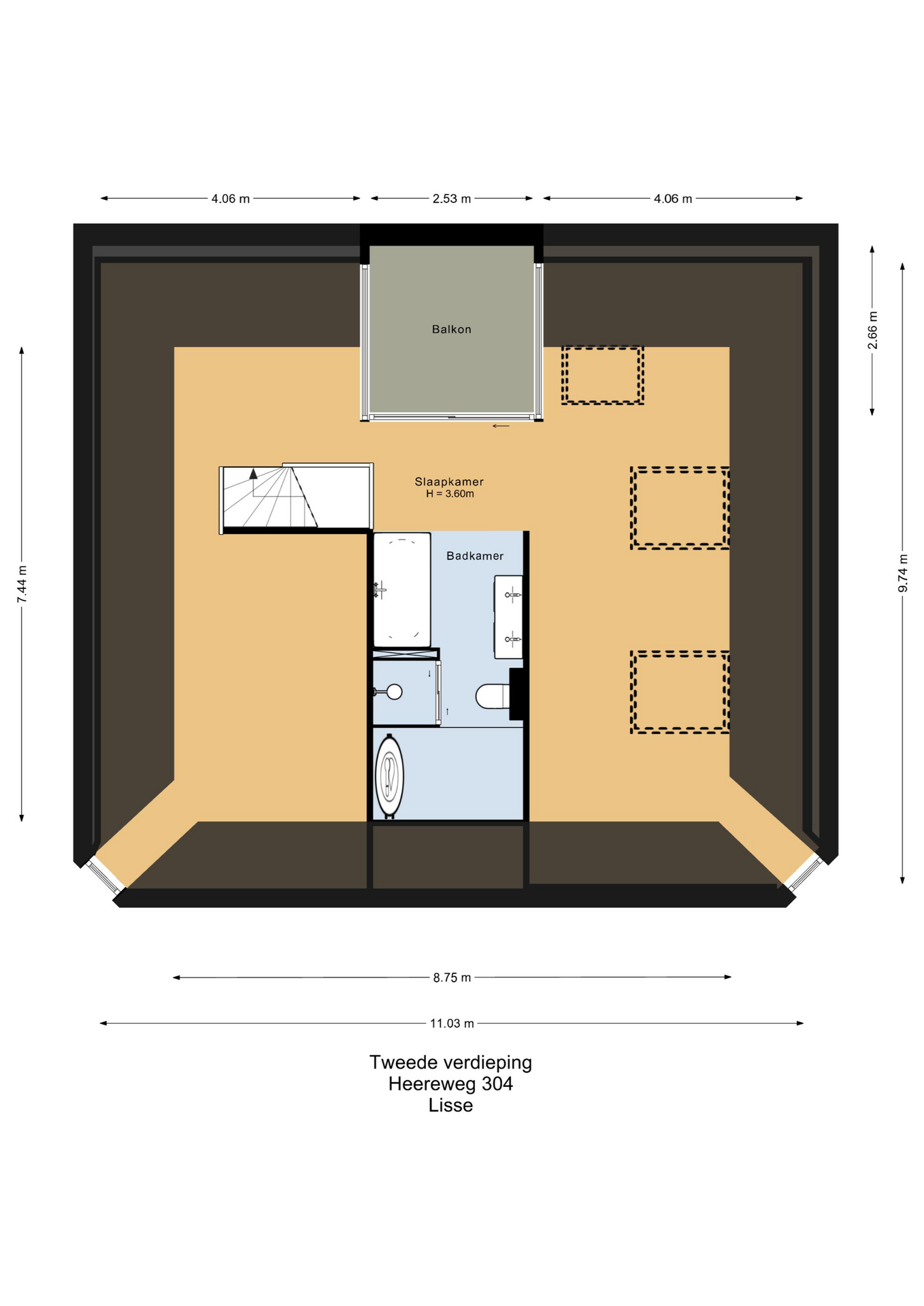
2nd Floor
The master bedroom covers the entire floor and features a walled balcony/loggia facing west, walk-in wardrobe and a luxury bathroom with bathtub, walk-in shower, 3rd toilet and wide sink with two taps on wooden furniture.

Garden
The beautifully landscaped garden surrounds the house and includes a new in authentic style wrought iron fence, lighting and irrigation. The very sunny backyard of 13 meters deep and 7.5 meters wide offers lots of privacy and is equipped with a large veranda where it is also good to stay in the colder months.

Sustainability
The house has wall, and roof insulation as well as insulated glazing. Furthermore, there are 32 solar panels and there are two new HR boilers installed.

Special features
- Driveway for 2 cars and indoor garage
- Very high ceilings with many recessed spotlights
- Walls and ceilings beautifully plastered
- Solid oak floors
- Luxury wooden panel doors
- In all rooms custom cabinets
- Alarm system
- Home office or practice is a great option, there is even a private address (Vuursteeglaan 1)
- Municipal monument

Also curious, I would love to show this beautiful home to you. See you soon, Miranda van der Wagt

Features

Solar panels
Alarm system
Transfer of ownership
Asking Price
€ 1.695.000 k.k.
Status
beschikbaar
Acceptance
in overleg
Construction
Kind of house
Herenhuis
Building type
vrijstaande woning
Construction period
1898
Energy rating
C
Bedrooms
4
Bathrooms
2
Surface Areas And Volume
Living Area
321 m2
Other indoor space
62 m2
Exterior space attached to the buildinge
9 m2
Volume in cubic meters
1349 m3
Plot Size
610 m2
Facilities
Mechanische ventilatie
Alarminstallatie
Zonnepanelen
In centrum
Baerz & Co Property Brochure

Brochure

Videos

Floor Plans

Leygraaf Makelaars

Kennemerstraatweg 67
1814 GC Alkmaar

romy@leygraafmakelaars.nl
+31 725114318

www.leygraafmakelaars.nl

Information / Viewing request

Romy van de Leygraaf profile image
Romy van de Leygraaf
Real Estate Agent

Buying a Luxury Property in Lisse

Lisse invites residents to embrace a harmonious lifestyle, blending tradition with refined modernity. The town’s exclusive homes, vibrant cultural scene, and seamless connectivity offer a compelling choice for internationally minded families, investors, and discerning buyers.