 
	        		Living in a Former School Building in the Heart of Hillegersberg
A hidden gem in the historic village center of Hillegersberg: half of a characteristic school building (built in 1911/1928) situated on freehold land. With approximately 253 m² of living space, this remarkable property offers plenty of room and atmosphere. Once a school, it has been cleverly transformed into an inspiring home by an interior architect and structural engineer. The current owners, two photographers, have continued this vision and further shaped the property in their own unique way. The result: a one-of-a-kind family home with high ceilings, large windows, surprising sightlines, and a creative, warm living experience.
Layout
At the front lies a green, secluded garden where you can enjoy peace and privacy in the morning and afternoon sun. A gate provides access to the adjacent schoolyard, which residents are allowed to use as a play area for children or for casual gatherings and barbecues with friends.
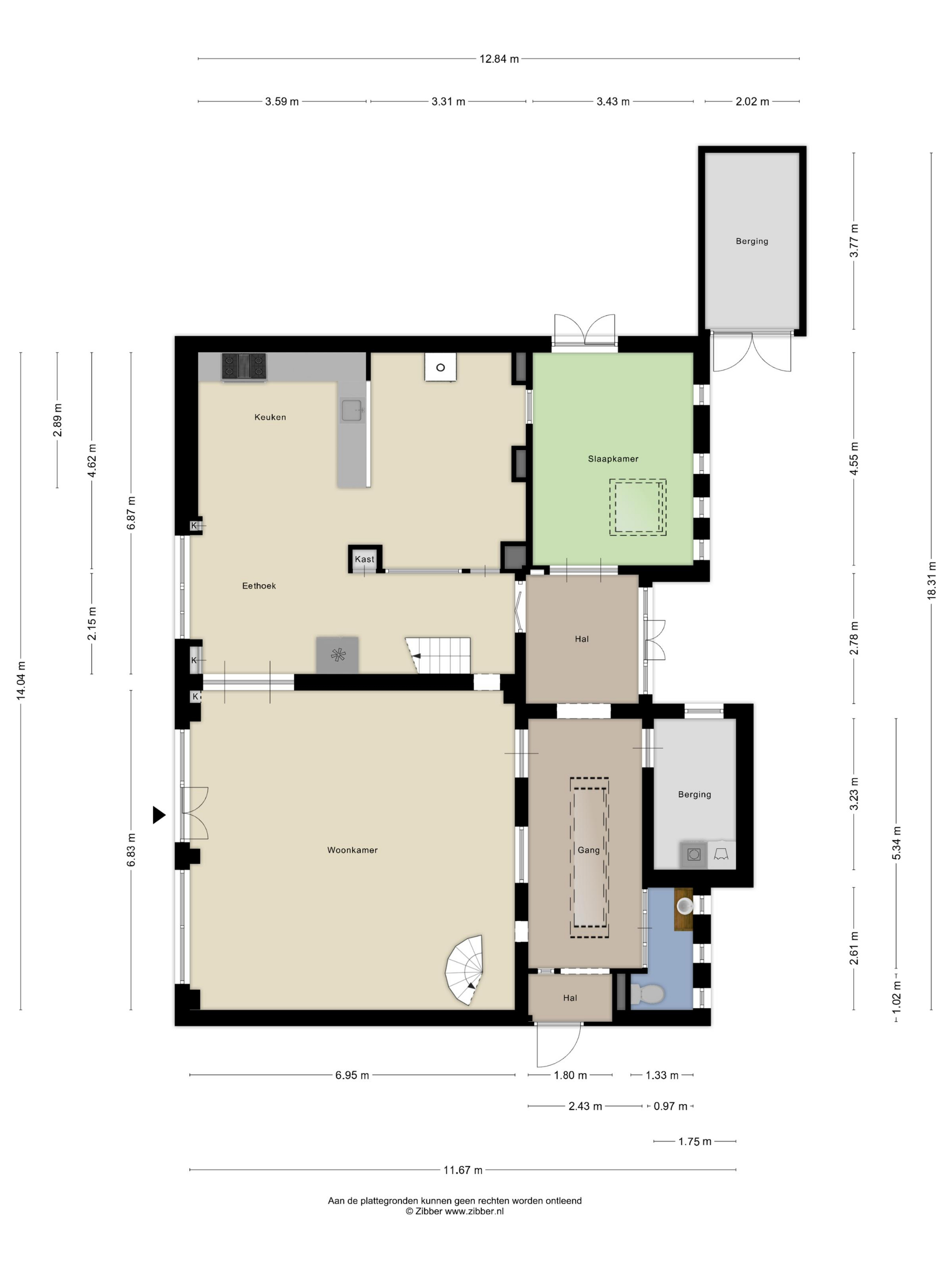
Inside, the living room immediately draws attention: an impressive space with height, light, and distinctive features such as tall doors and a striking spiral staircase. Adjacent is the spacious kitchen-diner the heart of the home featuring a fireplace, a cozy sitting area, and ample space for cooking and dining together.
Additionally, there is a multifunctional studio filled with natural light and equipped with underfloor heating, ideal for use as a workspace, playroom, or extra bedroom. Practical conveniences include a spacious laundry room and a rear storage area.
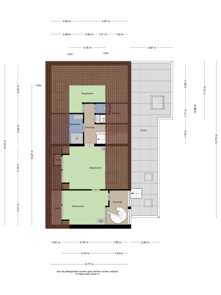
On the first floor, you’ll find a large bedroom with generous built-in wardrobes, a separate toilet, and a comfortable bathroom with a bathtub and double shower.
The second floor offers three more bedrooms, a second bathroom, and another separate toilet. One of the bedrooms is equipped with air conditioning.
Finally, there is a lovely rooftop terrace at the rear of the house, where you can enjoy the sun from afternoon well into the evening a peaceful retreat in the middle of the city.
Key Features
- Year of construction: 1911/1928
- Located on approx 349 m² of freehold land
- Energy label: C
- Living space: approx. 253 m² (in accordance with NEN2580)
- Building-related outdoor space (rooftop terrace): approx. 40 m² (in accordance with NEN2580)
- Hardwood window frames throughout
- Central heating and hot water via combi boiler
- A total of 2 bathrooms and 3 toilets
- Multifunctional studio/workspace on the ground floor
- Air conditioning in one of the bedrooms
- Access to a private schoolyard (residents only, no playing children after 7:00 PM)
- Characteristic former school building with high ceilings and a unique layout
- Spacious front garden with plenty of privacy, and a sunny rooftop terrace at the rear
Delivery in consultation.
For more information about this property, please visit the dedicated website: hilleniussingel25.nl
J.J. van Oosten Makelaardij is the NVM real estate agent representing the seller. We recommend that you engage your own NVM agent to represent your interests during the purchase of this property.
No rights can be derived from the content of this offer.
The living area of the property has been measured in accordance with the industry-wide measurement instruction (BBMI), which is based on NEN2580. The BBMI aims to standardize measurements to provide an indication of usable living space. However, it does not completely eliminate discrepancies due to, for example, differences in interpretation, rounding, or limitations during the measuring process.
