Ons kantoor is lid van Baerz & Co Luxury Homes; een internationaal platform dat exclusieve woningmakelaars met elkaar verbindt. Neem contact op met ons secretariaat voor meer informatie over het landelijke aanbod, waarvan u hieronder een selectie kunt bekijken.

VENLO
Monseigneur Boermansstraat 11 - 5911 BA
Netherlands

Romy van de Leygraaf profile image
Romy van de Leygraaf
Real Estate Agent
€898,750 k.k.
Living Area
225m2
Plot Size
240m2
Bedrooms
5

Description

Stylish 1926 Townhouse with Deep Rear Garden, Heated Pool and a Prime Location in the Heart of the City, Overlooking the Rosarium!

This spacious and characterful townhouse is situated in a truly exceptional location. Spread across three floors, it combines space, comfort and authentic charm. The home is just a short walk from Venlo’s city centre and offers beautiful views over the Rosarium.

The property features a large living room, four bedrooms (potentially five), and two bathrooms, making it ideal for a large family or for anyone who values extra living space or a home office. The deep, architect-designed rear garden with heated swimming pool offers plenty of peace, space and privacy.

A uniquely spacious and character-rich home in one of Venlo’s most desirable locations—perfect for those seeking luxury living with the convenience of all amenities just around the corner.

Basement
The basement consists of multiple rooms. Here you will find the utility meters, inverter for the solar panels, laundry connections, water softener and various built-in cupboards.

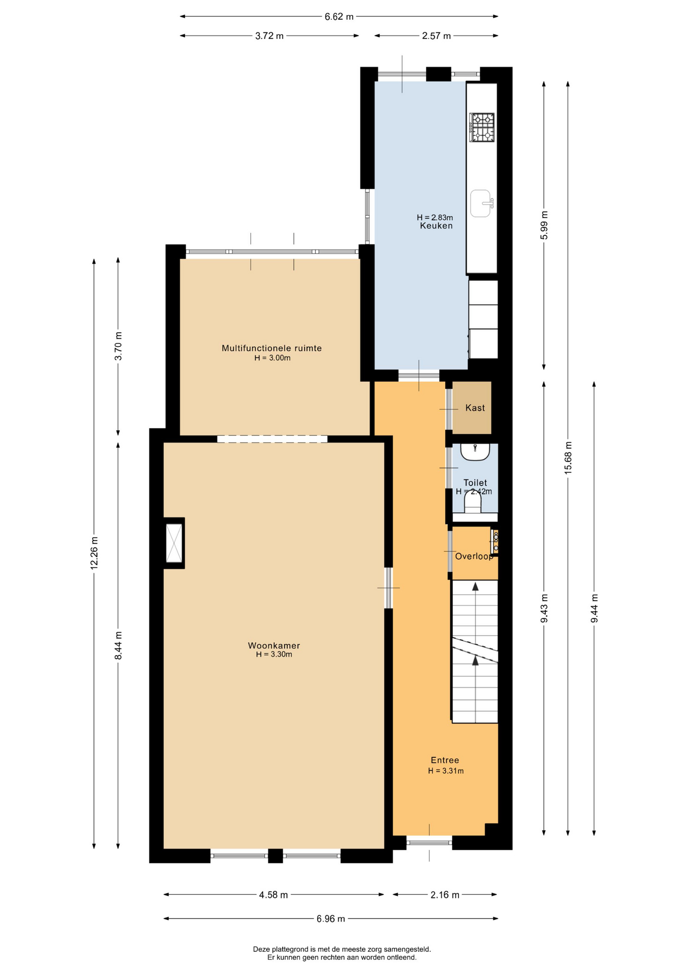
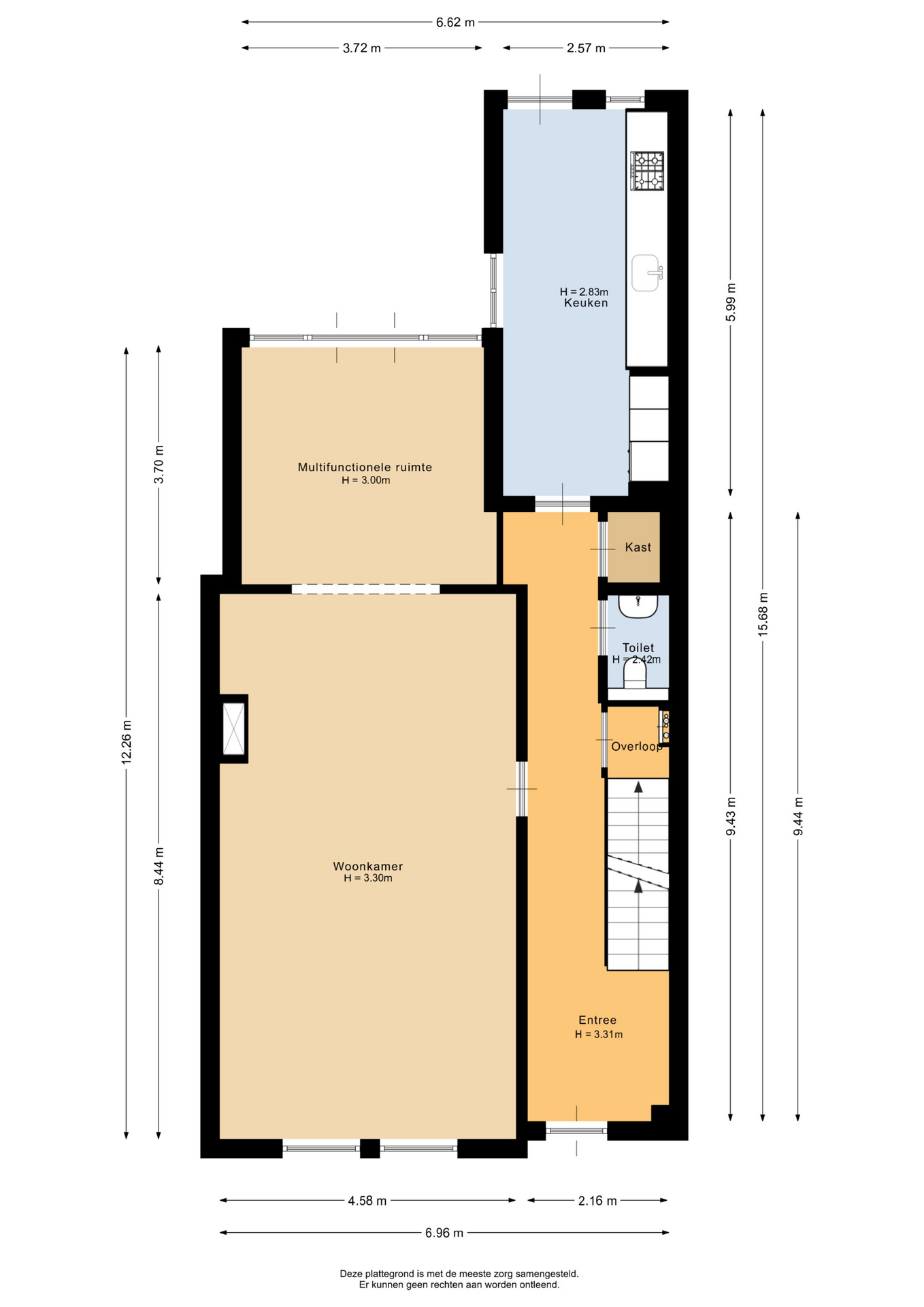
Ground Floor
The wide entrance hall features a Bianco Carrara marble tile floor. From here, you have access to the basement, the toilet with washbasin, and a storage cupboard housing the heat pump and central heating boiler.

The deep and wide living room is fitted with extra-wide French oak herringbone parquet flooring. The impressive high ceiling features original ornaments and cornices with integrated dimmable lighting. At the front, you enjoy unobstructed views of the Rosarium. A gas fireplace adds extra ambience, while the air conditioning provides both cooling and heating. Due to the raised position of the windows relative to the pavement, there is no visibility from outside. At the rear, French doors open directly onto the garden.

The fully equipped kitchen features a linear layout with a tiled floor and is fitted with a 5-burner gas hob, extractor hood, oven, steam oven, dishwasher, refrigerator, freezer and a tall pull-out pantry cabinet.

First Floor
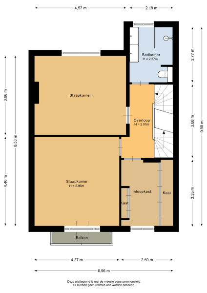
From the landing, the two bedrooms, the walk-in closet (optional fifth bedroom) and the bathroom are accessible.

The master bedroom has PVC flooring and provides access to the balcony at the front of the house, offering stunning views over the Rosarium. The second bedroom is fitted with carpet, air conditioning and double French doors to the flat roof at the rear.

The large, high-quality bathroom (renovated in 2025) features a spacious walk-in shower with sunshower, toilet, double washbasin unit, designer radiator and mechanical ventilation. The tiled floor includes electric underfloor heating.

Second Floor
The second floor is reached via a fixed staircase. The landing has carpet and a Velux roof window with screen.

The third bedroom is equipped with air conditioning, carpet flooring and a Velux roof window with screen. A loft above offers additional storage space. The fourth bedroom features carpet flooring and a dormer window.

The bathroom (2019) also benefits from the dormer, providing extra space. It includes a large walk-in shower, washbasin unit, wall-mounted toilet, designer towel radiator and underfloor heating.

Garden
The architect-designed rear garden is wonderfully deep and, thanks to its multiple levels, offers excellent privacy. The garden includes a paved terrace, artificial grass and padauk wooden decking. It is fully walled, ensuring tranquillity despite being just steps away from Venlo’s city centre. The large garden features a heated swimming pool (with heat pump), outdoor electricity points and garden lighting.

Additional Features
- Optional: garage available for rent
- Wooden window frames with HR++ glazing
- 15 solar panels (2023) producing a total of 6,000 kWh
- Air conditioning in living room and 2 bedrooms
- Underfloor heating in bathrooms on 1st and 2nd floors
- Energy label A++ (unique for a house of this era)
- Low-temperature convector radiators throughout
- Heat pump (2025)
- Irrigation system (Rainbird) with drip lines

Features

Swimming pool
Solar panels
Air conditioning
Transfer of ownership
Asking Price
€ 898.750 k.k.
Status
beschikbaar
Acceptance
in overleg
Construction
Kind of house
Herenhuis
Building type
tussenwoning
Construction period
1926
Energy rating
A++
Roof type
samengesteld dak
Bedrooms
5
Bathrooms
2
Surface Areas And Volume
Living Area
225 m2
Other indoor space
36 m2
Exterior space attached to the buildinge
2 m2
Volume in cubic meters
807 m3
Plot Size
240 m2
Facilities
Mechanische ventilatie
Zwembad
Airconditioning
Dakraam
Zonnepanelen
Aan rustige weg
In centrum
Baerz & Co Property Brochure

Brochure

Videos

Leygraaf Makelaars

Kennemerstraatweg 67
1814 GC Alkmaar

romy@leygraafmakelaars.nl
+31 725114318

www.leygraafmakelaars.nl

Information / Viewing request

Romy van de Leygraaf profile image
Romy van de Leygraaf
Real Estate Agent

Buying a Luxury Property in Venlo

Venlo delivers a harmonious blend of heritage, modernity, and international connectivity. Its vibrant community, cultural vitality, and tailored real estate services meet the demands of global buyers and families seeking refined living.