Ons kantoor is lid van Baerz & Co Luxury Homes; een internationaal platform dat exclusieve woningmakelaars met elkaar verbindt. Neem contact op met ons secretariaat voor meer informatie over het landelijke aanbod, waarvan u hieronder een selectie kunt bekijken.

WOUW
Akkerstraat 5 a - 4724 SX
Netherlands

Erwin Schuurbiers profile image
Erwin Schuurbiers
Makelaar / Taxateur
€1,165,000 k.k.
Living Area
231m2
Plot Size
1010m2
Bedrooms
4

Description

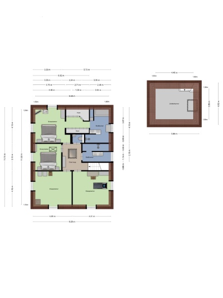
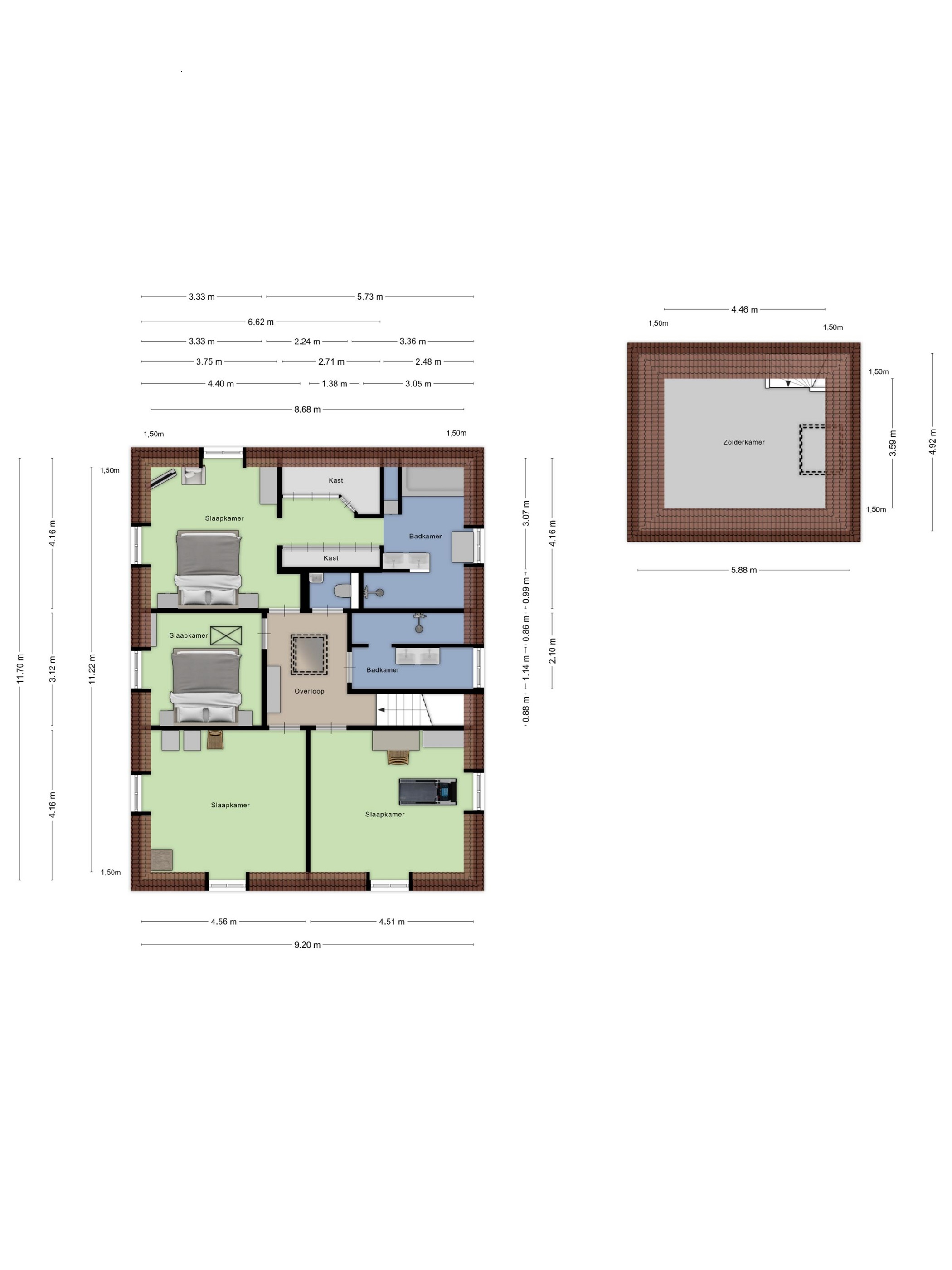
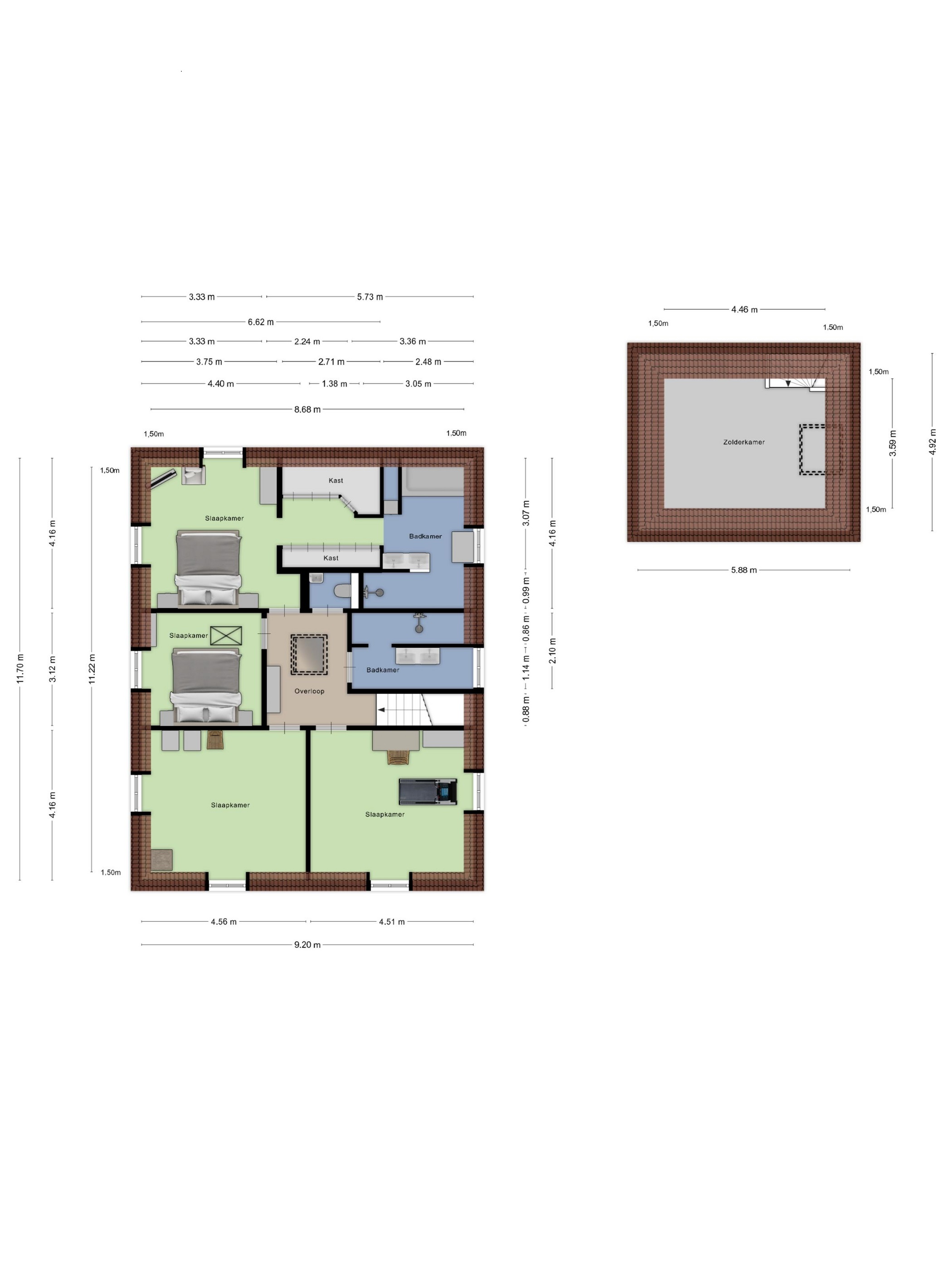
Notary residence Wouw presents a harmonious interplay of light, space and refined efficiency on the peaceful edge of this bourgondic village. This notary residence in Wouw offers 231 m² of living area, set on a 1,010 m² plot with panoramic views of the iconic windmill and tranquil fields. Designed in 2008 and meticulously finished, the house embodies high standards of quality and comfort, underpinned by energy class A++ certification through its geothermal heat pump, 29 solar panels, and comprehensive insulation.

From the moment of arrival, a double electric gate signals the property’s commitment to both elegance and discretion. The living experience unfolds with a generous, light-filled living room anchored by a stone fireplace, adjacent to a semi-open kitchen appointed with Miele and Bosch appliances, a composite island and ergonomic amenities. Four bedrooms include a master suite with a walk-in closet and luxury en-suite, joined by a second bathroom and private guest spaces—amplified by the multifunctional wing, ideal for professional or in-law use, and a full-featured garage with an upper retreat.

Outdoors, the beautifully landscaped, irrigated gardens and natural stone terraces invite a quiet rhythm of life, further enhanced by serene views and absolute privacy. The notary residence Wouw is distinguished by timeless structure and contemporary efficiency, designed for those who value authentic quality and enduring provenance.

Explore Wouw with Baerz, Your Trusted Personal Property Finder & Advisor

The intricacies of acquiring or marketing exceptional homes in Wouw favour collaboration with experienced advisors. Navigating heritage property assessments, off-market opportunities, and local negotiations requires both network connections and nuanced market insight. Strategic guidance can secure access to discreetly listed or privately traded assets, ensuring both discretion and value.

Special Features

Solar panels
Alarm system

Features

Transfer of ownership
Asking Price
€ 1.165.000 k.k.
Status
beschikbaar
Acceptance
in overleg
Construction
Kind of house
Eengezinswoning
Building type
vrijstaande woning
Construction period
2008
Energy rating
A++
Roof type
mansarde dak
Bedrooms
4
Bathrooms
2
Surface Areas And Volume
Living Area
231 m2
Other indoor space
95 m2
Volume in cubic meters
1209 m3
Plot Size
1010 m2
Facilities
Mechanische ventilatie
Alarminstallatie
Zonnepanelen
Natuurlijke ventilatie
Landelijk gelegen
Baerz & Co Property Brochure

Brochure

Videos

Floor Plans

Helmig Makelaardij en Taxatieburo o.z. B.V.

Dorpsstraat 107
4661 HN Halsteren

info@helmigmakelaardij.nl
+31 164-685925

www.helmigmakelaardij.nl

Information / Viewing request

Erwin Schuurbiers profile image
Erwin Schuurbiers
Makelaar / Taxateur