Ons kantoor is lid van Baerz & Co Luxury Homes; een internationaal platform dat exclusieve woningmakelaars met elkaar verbindt. Neem contact op met ons secretariaat voor meer informatie over het landelijke aanbod, waarvan u hieronder een selectie kunt bekijken.

VALKENBURG
Voorschoterweg 71 B - 2235 SG
Países Bajos

Frits Wilbrink profile image
Frits Wilbrink
Real estate agent
€1,175,000 k.k.
Área de estar
162m2
Tamaño del terreno
655m2
Dormitorios
3

Descripción

Este chalet pareado en Valkenburg se sitúa directamente junto al agua, ofreciendo un entorno de vida tranquilo frente al canal en pleno corazón de la Randstad. La propiedad cuenta con 162 m² de interior refinado sobre una parcela de 655 m², integrados por un jardín diseñado por arquitecto y un embarcadero privado de diez metros sobre el Viejo Rin, lo que brinda acceso directo hacia Leiden y los lagos Kagerplassen. Se puede acceder desde el soleado patio trasero al agua, donde la navegación es parte de la vida diaria y el lago Valkenburg está a poca distancia a pie.

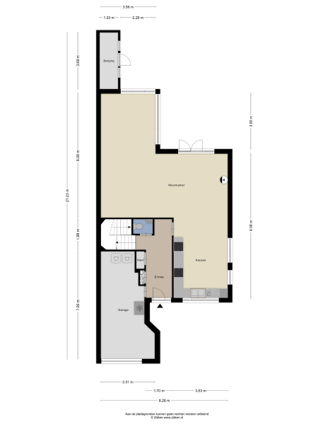
En el interior, la villa presenta un amplio vestíbulo que conduce a un luminoso salón. Los grandes ventanales y puertas francesas enmarcan las vistas al jardín y al agua, complementados por una chimenea de gas y calefacción por suelo radiante en toda la planta baja. La cocina ofrece tanto un espacio de trabajo como un punto de encuentro social, mientras que el garaje adjunto dispone de puerta eléctrica y conexiones de servicios dedicadas. En la planta superior, tres dormitorios y un baño de lujo renovado en 2022 con calefacción por suelo radiante y ducha a ras de suelo conforman la zona privada. Un vestidor y un generoso altillo de almacenamiento aportan flexibilidad, y la realización de un futuro cuarto dormitorio es totalmente viable.

Los jardines paisajísticos delantero y trasero ofrecen zonas de sol y sombra, enriquecidos por un sistema automático de riego, un cobertizo junto al agua y la privacidad del aparcamiento para tres coches en la propiedad. Con Certificado Energético B, acristalamiento HR++ y acabados seguros, la vivienda combina confort y tranquilidad. Esta villa de lujo en venta en Valkenburg se sitúa a pocos minutos del centro urbano de Leiden, cerca de colegios internacionales y a menos de veinte minutos de Ámsterdam, Schiphol y La Haya, perfectamente conectada para la vida familiar y profesional. Aquí, la vida se define por el espacio, la luz y la sutil presencia del agua.

Explora Valkenburg con Baerz, tu asesor y buscador personal de propiedades de confianza

Contar con asesores locales es esencial debido a la variedad arquitectónica, las regulaciones patrimoniales y oportunidades fuera del mercado público. Consultores experimentados ofrecen acceso a propiedades exclusivas y recomendaciones estratégicas apoyadas en su red con arquitectos especializados, logrando transacciones eficientes y bien orientadas.

Evite errores comunes

Los compradores internacionales a menudo desperdician tiempo valioso navegando por anuncios duplicados, desactualizados o engañosos, especialmente porque casi el 30% de las propiedades de lujo nunca aparecen en el mercado.
Los agentes del vendedor representan los intereses del vendedor, no los suyos, y simplemente solicitar información sobre una propiedad puede hacer que las agencias lo registren como su “cliente” sin su consentimiento.
Con Baerz Property Finders & Advisors, evita completamente estos problemas.
Actuamos únicamente en su nombre, ofreciendo representación independiente, orientación transparente y acceso a todas las propiedades disponibles, incluidas oportunidades privadas y fuera de mercado que otros nunca ven.

¿Le gustaría saber cómo asegurar su propio Asesor Personal de Propiedades? Contáctenos para descubrir cómo podemos representar sus intereses y abrirle el mercado completo.

Características

Alarm system
Transferencia de propiedad
Precio de Venta
€ 1.175.000 k.k.
Estado
beschikbaar
Aceptación
in overleg
Construcción
Tipo de casa
Villa
Tipo de edificio
halfvrijstaande woning
Período de construcción
1992
Calificación energética
B
Tipo de techo
samengesteld dak
Dormitorios
3
Baños
1
Superficies y Volumen
Área de estar
162 m2
Otro espacio interior
43 m2
Volumen en metros cúbicos
760 m3
Tamaño del terreno
655 m2
Instalaciones
Mechanische ventilatie
Alarminstallatie
Tv kabel
Buitenzonwering
Rookkanaal
Aan water
Beschutte ligging
Buiten bebouwde kom
Aan vaarwater
Baerz & Co Property Brochure

Folleto

Vídeos

Planos

Wilbrink & v.d. Vlugt Makelaars

Heereweg 231
2161 BG Lisse

info@wilbrinkvandervlugt.nl
+31 252 41 90 49

www.onsaanbod.nl

Solicitud de información / Visita

Frits Wilbrink profile image
Frits Wilbrink
Real estate agent