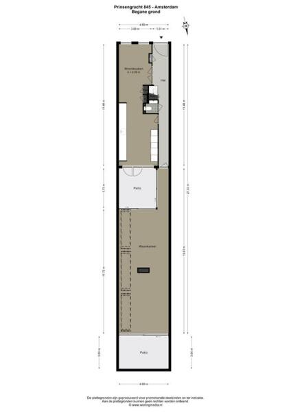
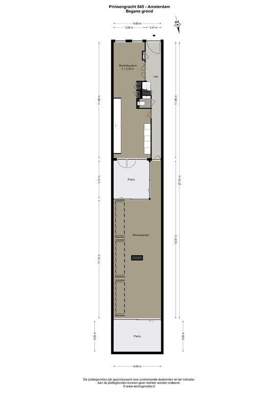
Cette maison de canal à Amsterdam trouve son expression exemplaire sur Prinsengracht, où cette résidence entièrement rénovée s’étend sur environ 287 m² et établit un standard rare pour l’habitat urbain. Répartie sur cinq niveaux soigneusement agencés, la maison propose quatre chambres et trois salles de bains, auxquelles s’ajoutent deux patios intimistes et une expérience de vie définie par la lumière, l’équilibre et l’authenticité.
L’entrée historique le long du canal mène à un hall orné de marbre, qui s’ouvre sur une cuisine-séjour baignée de lumière, équipée d’appareils Gaggenau et d’une vaste salle à manger donnant sur le canal à travers de larges baies vitrées. Les portes vitrées en acier, les carreaux anciens préservés et un espace de plus de 30 mètres au rez-de-chaussée offrent une continuité rare, même parmi les prestigieuses maisons de canal d’Amsterdam. Le sol en microciment du salon, la cheminée à gaz tunnel et les généreuses verrières apportent une sérénité raffinée, tandis que les patios et le carrelage d’origine invitent la nature à l’intérieur.
Chaque étage supérieur est mis en valeur par du chêne français : des espaces du premier étage, parfaits pour un bureau ou une salle familiale, à la suite parentale qui occupe tout le deuxième niveau avec vue sur les canaux, poutres apparentes et salle de bains luxueuse en suite. Des chambres supplémentaires, salles de bains haut de gamme en microciment, et une suite au dernier étage offrent un accueil familial généreux, entièrement climatisé et doté d’une domotique avancée.
Idéalement située dans le centre d’Amsterdam, entre Nieuwe Spiegelstraat et Vijzelstraat, la propriété permet un accès immédiat aux musées, boutiques de prestige, restaurants raffinés et à la quiétude d’Amstelveld. Tram, métro et axes principaux relient la ville et l’aéroport avec une facilité exemplaire. Cette maison de canal en pleine propriété élève l’art de vivre citadin au rang de référence internationale, alliant histoire, rythme et discrétion. Pour ceux en quête d’une maison de canal de luxe à vendre à Amsterdam, cette adresse offre une convergence rare entre patrimoine et raffinement contemporain.
Découvrez Amsterdam avec Baerz, votre conseiller et chasseur immobilier personnel de confiance
Pour naviguer le marché de prestige d’Amsterdam, il faut s’appuyer sur une connaissance pointue de la ville, la discrétion et des compétences avérées en négociation. Les meilleurs conseillers accèdent à des biens confidentiels, expliquent les subtilités réglementaires et identifient la valeur où l’opportunité ne se montre que rarement. Les équipes conseil opèrent une sélection poussée et assurent la représentation, renforçant votre position, assurant le bon déroulé de la transaction et veillant au respect de votre vie privée à chaque étape.
Évitez les pièges courants
Les acheteurs internationaux perdent souvent un temps précieux à naviguer entre des annonces en ligne dupliquées, obsolètes ou trompeuses, d’autant que près de 30% des propriétés de luxe ne sont jamais mises sur le marché.
Les agents du vendeur représentent les intérêts du vendeur, pas les vôtres, et une simple demande d’information peut entraîner votre inscription comme “client” auprès d’une agence sans votre consentement.
Avec Baerz Property Finders & Advisors, vous évitez totalement ces écueils.
Nous agissons exclusivement en votre nom, en vous offrant une représentation indépendante, des conseils transparents et un accès à toutes les propriétés disponibles, y compris les opportunités privées et off-market que les autres ne voient jamais.
Curieux de savoir comment obtenir votre propre Conseiller Immobilier Personnel ? Contactez-nous pour découvrir comment nous pouvons défendre vos intérêts et vous ouvrir l’accès à l’ensemble du marché.