Ons kantoor is lid van Baerz & Co Luxury Homes; een internationaal platform dat exclusieve woningmakelaars met elkaar verbindt. Neem contact op met ons secretariaat voor meer informatie over het landelijke aanbod, waarvan u hieronder een selectie kunt bekijken.

VOGELENZANG
Bekslaan 58 - 2114 CA
Les Pays-Bas

Frits Wilbrink profile image
Frits Wilbrink
Real estate agent
€3,750,000 k.k.
Surface habitable
297m2
Superficie du terrain
18030m2
Chambres
3

Description

La villa individuelle à Vogelenzang vous accueille au cœur d'une rare étendue boisée de 18 030 m², offrant un mode de vie empreint de confidentialité, de calme et d'une connexion intime avec la nature. Achevée en 2019, cette villa offre 297 m² habitables ainsi que trois chambres, harmonisant le confort contemporain à un environnement intemporel. Conçue pour ceux qui cultivent la mesure et le raffinement, elle est habillée de briques moulées à la main, de dallages en pierre de Bourgogne naturelle et de portes en chêne massif, tandis que les bardages en Red Cedar garantissent pérennité et entretien réduit.

La spatialité, généreuse mais équilibrée, s’ouvre sur un hall majestueux avec escalier et ascenseur desservant l’ensemble du domicile. Le séjour, doté d’une cheminée et du chauffage par le sol, s’ouvre sur une véranda avec vue sur la forêt mature offrant une parfaite continuité entre intérieur et paysage. La cuisine conviviale se distingue par son piano de cuisson à induction AGA, ses hauts plafonds, sa mezzanine et un accès direct au jardin. À l’étage, la lumière naturelle entre par les puits de lumière et fenêtres de toit ; la suite parentale bénéficie d’un dressing et d’une salle de bains luxueuse. Deux autres chambres et une seconde salle d’eau accueillent famille ou invités avec élégance.

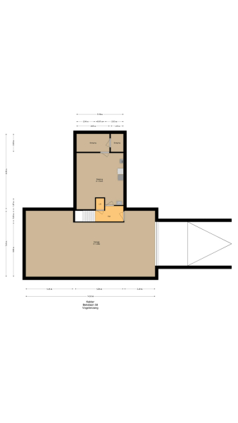
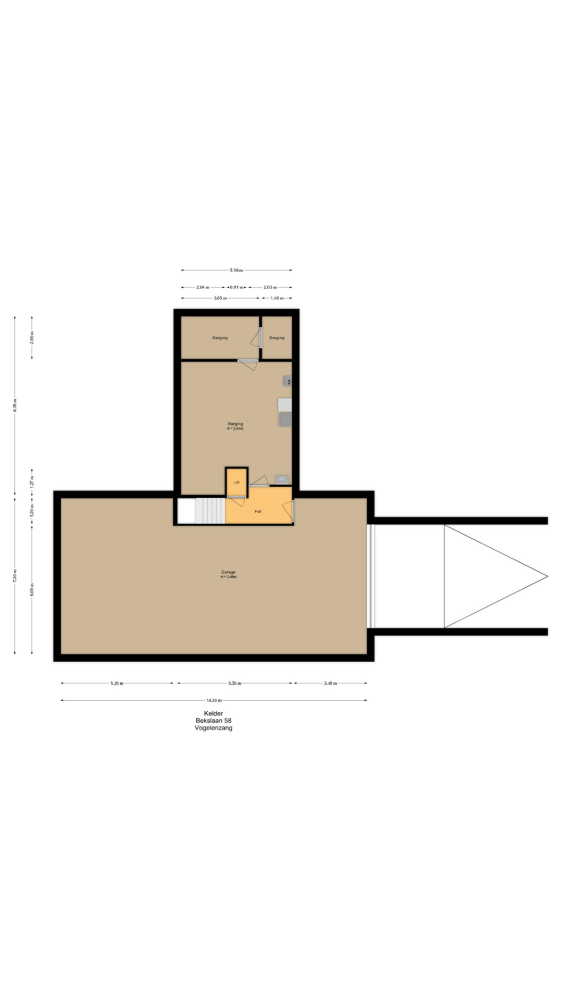
Le vaste sous-sol intègre un double garage pouvant accueillir jusqu’à quatre voitures, une borne de recharge électrique, des espaces de rangement, ainsi qu’un local technique et buanderie. Isolation avancée, vitrage HR++, système d’alarme et étiquette énergétique A assurent la pérennité de la villa. Tous les étages sont accessibles par escalier ou ascenseur pour une vie quotidienne facilitée.

Un port privé avec amarres pour trois sloeps prolonge l’expérience vers l’eau, offrant un accès direct au Leidsche Vaart et à ses voies vers Haarlem et les Kagerplassen. Les commodités quotidiennes restent aisément accessibles à vélo, ajoutant la rare commodité à cette retraite préservée. Cette villa de prestige proposée à Vogelenzang incarne sérénité, maîtrise artisanale et accessibilité, séduisant ceux qui savent évoluer discrètement entre plusieurs mondes.

Découvrez Vogelenzang avec Baerz, votre conseiller et chasseur immobilier personnel de confiance

Le marché demande expertise et réseau, la plupart des ventes étant confidentielles ou sur invitation. Des conseillers aguerris ouvrent l’accès aux biens hors-marché et pilotent des négociations complexes impliquant patrimoine ou zones protégées. Leur accompagnement s’avère précieux lors des due diligences, expertises et arbitrages d’investissement, dans la plus grande discrétion à chaque étape.

Évitez les pièges courants

Les acheteurs internationaux perdent souvent un temps précieux à naviguer entre des annonces en ligne dupliquées, obsolètes ou trompeuses, d’autant que près de 30% des propriétés de luxe ne sont jamais mises sur le marché.
Les agents du vendeur représentent les intérêts du vendeur, pas les vôtres, et une simple demande d’information peut entraîner votre inscription comme “client” auprès d’une agence sans votre consentement.
Avec Baerz Property Finders & Advisors, vous évitez totalement ces écueils.
Nous agissons exclusivement en votre nom, en vous offrant une représentation indépendante, des conseils transparents et un accès à toutes les propriétés disponibles, y compris les opportunités privées et off-market que les autres ne voient jamais.

Curieux de savoir comment obtenir votre propre Conseiller Immobilier Personnel ? Contactez-nous pour découvrir comment nous pouvons défendre vos intérêts et vous ouvrir l’accès à l’ensemble du marché.

Caractéristiques

Alarm system
Transfert de propriété
Prix demandé
€ 3.750.000 k.k.
Statut
beschikbaar
Acceptation
in overleg
Construction
Type de maison
Villa
Type de bâtiment
vrijstaande woning
Période de construction
2019
Classe énergétique
A
Type de toit
samengesteld dak
Chambres
3
Salles de bains
2
Surfaces et volumes
Surface habitable
297 m2
Autre espace intérieur
97 m2
Espace extérieur attenant au bâtiment
28 m2
Volume en mètres cubes
1468 m3
Superficie du terrain
18030 m2
Équipements
Mechanische ventilatie
Alarminstallatie
Tv kabel
Lift
Rookkanaal
Dakraam
Aan bosrand
Aan water
Aan rustige weg
Vrij uitzicht
Beschutte ligging
Buiten bebouwde kom
In bosrijke omgeving
Landelijk gelegen
Baerz & Co Property Brochure

Brochure

Vidéos

Wilbrink & v.d. Vlugt Makelaars

Heereweg 231
2161 BG Lisse

info@wilbrinkvandervlugt.nl
+31 252 41 90 49

www.onsaanbod.nl

Demande d'information / de visite

Frits Wilbrink profile image
Frits Wilbrink
Real estate agent