Aan de rand van het Betuwse dorpje Hellouw staat deze goed onderhouden woonboerderij ‘De Korfstee’: een charmant geheel met een rijke geschiedenis, een zonnige, diepe tuin met veel privacy, een bijgebouw en een carport.
Ruime hal met toegang tot de zonnige, tuingerichte woonkamer in de voormalige deel, sfeervolle woonkeuken met toegang tot de wijnkelder, centrale gang met aangrenzend een slaapkamer met open haard, een kleedkamer, de eerste badkamer en een tuingerichte werkkamer op de begane grond.
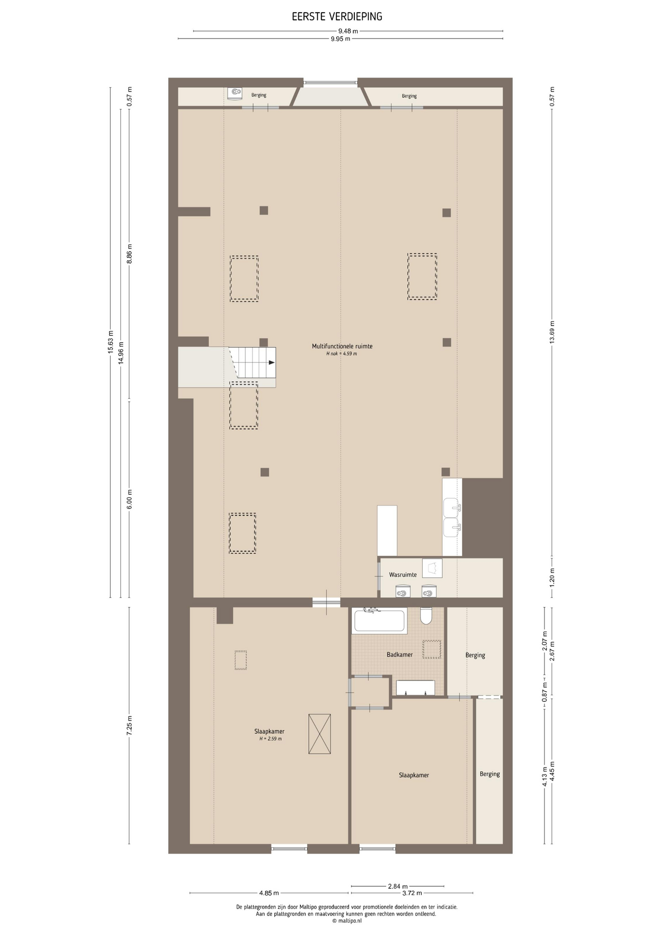
Royale open ruimte met pantry onder de geïsoleerde kap in het achterhuis en twee slaapkamers en een tweede badkamer in het voorhuis op de eerste verdieping.
Bruto-inhoud: 1.540 m³
Gebruiksoppervlak wonen: 403 m²
Perceeloppervlak: 4.910 m²
Bouwjaar: 1917
Hellouw (circa 1050 inwoners) is een vriendelijk Betuws dorp aan de rivier de Waal. Het kenmerkt zich door een sterke sociale cohesie en een actief verenigingsleven. Het landschap wordt gekenmerkt door uiterwaarden, dijken en boomgaarden. Hier wandelt u langs de rivier, fietst u door het groen en geniet u van een rustige woonomgeving.
Het dorp ligt centraal tussen de A2, A15 en A27. Albert Heijn bezorgt hier aan huis en daarnaast beschikt Hellouw over een aantal boerderijwinkels (Kaas, vlees, eieren, fruit en bloemen) Voorts liggen Haaften, Herwijnen en Zaltbommel binnen handbereik. Gorinchem ligt op een kwartier rijden, ’s-Hertogenbosch op twintig minuten, Rotterdam en Utrecht op dertig minuten en Breda en Nijmegen zijn in drie kwartier bereikbaar. De omgeving biedt volop recreatiemogelijkheden langs de Waal en in de natuurgebieden van de Betuwe.
Indeling begane grond:
Via de entree aan de opritzijde bereikt u een ruime hal met garderobe en toilet. Een glasdeur geeft toegang tot de voormalige deel, waar een royale woonkamer is gerealiseerd. De imposante zandstenen schouw met open haard, de houten spanten en de met antieke rode estriken belegde vloer zorgen voor een aangename sfeer. De vloer is hier, evenals in de hal, voorzien van vloerverwarming.
Twee paar openslaande deuren geven toegang tot het terras en de tuin, die ruim 100 meter doorloopt tot in het achterliggende privébos(je).
Aangrenzend bevindt zich een zitkamer met gashaard: een fijne plek om u in de avondzon terug te trekken, televisie te kijken of muziek te luisteren.
De woonkeuken vormt het hart van het huis en biedt via dubbele deuren toegang tot de zijtuin. De 4-oven Aga-cooker (voorzien van een klokthermostaat en daardoor energiezuinig), het natuurstenen werkblad met porseleinen spoelbak, messing kraan en Portugese vloertegels zorgen voor een klassieke sfeer.
In de keuken zijn diverse ambachtelijk getimmerde vaste (boeken)kasten aanwezig, waarin ook de toegang tot de wijnkelder subtiel is weggewerkt.
Symmetrisch in het voorhuis bevindt zich een centrale gang met toegang tot de aangrenzende vertrekken. Aan de oostzijde ligt een ruime slaapkamer met vaste kasten en een luxe open haard – in het verleden was dit de woonkamer. Aan de andere zijde bevindt zich een werkkamer met zicht op de voortuin. Daarachter ligt een garderobekamer met aangrenzende badkamer in Engelse stijl.
Indeling eerste verdieping:
De verdieping boven het achterhuis is verrassend dankzij de indrukwekkende nokhoogte van ruim 4,5 meter en het open karakter van deze voormalige hooizolder. De huidige eigenaren hebben deze ruimte gebruikt als vergaderruimte, waarbij de pantry praktisch was. Deze verdieping kan desgewenst eenvoudig worden ingericht met extra (slaap)kamers en badkamer. Een optionele plattegrond is toegevoegd om dit inzichtelijk te maken. Het creëren van een luxe suite behoort ook tot de mogelijkheden.
De huidige indeling van het voorhuis voorziet in twee ruime slaapkamers, een tweede badkamer en een berging.
Bijzonderheden:
Het perceel van bijna 5.000 m² met onder meer een onderhoudsarme bloementuin is een waar paradijs voor vogels en insecten. Het perceel is omzoomd door knotwilgen, aan de voorzijde staan een oude pruimenboom en een karakteristieke treurwilg. Links van de woonboerderij bevindt zich een oprit voor meerdere auto’s, waarvan er twee onder de carport passen.
Het voorhuis is separaat toegankelijk middels een eigen ingang, de oude voordeur. Deze wordt door de huidige bewoners niet gebruikt maar maakt dubbele bewoning of praktijk aan huis heel goed mogelijk.
Achter in de tuin staat een geïsoleerd bijgebouw met houtkachel en keukenblokje. De huidige eigenaren hebben deze ruimte ingericht voor de verkoop van brocante. Het bijgebouw beschikt over openslaande deuren naar een overkapping van 10 m² – een fijne plek voor de jeugd, logees, ateliergebruik of als rustige werkplek.
Achter het bijgebouw ligt de bloemenweide met een boomgaard met peren, appels, pruimen, mispels en kweeperen.
Het bijgebouw is met vergunning aanzienlijk te vergroten. Aan de achterzijde loopt het zuidgerichte perceel over in een eigen bos(je). Aan het begin van het bos staan een dierenverblijf met buitenren, een groot vlonderterras en een paddenpoel. Al met al een groene enclave met een parkachtige uitstraling, waar veel vogels en andere dieren zich thuis voelen. Regelmatig zijn er egels, kool- en pimpelmezen, merels, lijsters, vinken, roodborstjes, boomklevers, spechten, maar ook hazen en fazanten te zien. Her en der hangen nestkastjes voor vogels, vlinders en vleermuizen, die vrijwel ieder jaar volop worden gebruikt.
Op loopafstand bevindt zich De Crobsche Waard, een 77 hectare groot natuurreservaat. Het reservaat ontstond door kleiwinning voor de lokale baksteenindustrie, waarna een bijzonder landschap werd gevormd. De voormalige zwembadput en de ijsbaan herinneren aan vroegere tijden.
De ijsbaan wordt nog altijd onderhouden door ijsclub De IJsvogels, genoemd naar de ijsvogel die er te vinden is, naast aalscholvers, blauwe reigers, lepelaars en ooievaars.
Door het gebied, waar recent een voedselbos is aangelegd, lopen diverse wandelpaden. Een rondje Crobsche Waard is circa 6 kilometer; ideaal om te wandelen, al dan niet met uw viervoeter.
Als u op zoek bent naar een sfeervolle woonboerderij waar wonen en werken op een landelijke én centrale locatie samenkomen, dan nodigen wij u graag uit voor een bezichtiging.