Ons kantoor is lid van Baerz & Co Luxury Homes; een internationaal platform dat exclusieve woningmakelaars met elkaar verbindt. Neem contact op met ons secretariaat voor meer informatie over het landelijke aanbod, waarvan u hieronder een selectie kunt bekijken.

HARLINGEN
Noorderhaven 102 - 8861 AR
Нидерланды

Ellen Schoneveld profile image
Ellen Schoneveld
Real Estate Agent
€1,150,000 k.k.
Жилая площадь
208m2
Размер участка
148m2
Спальни
5

Описание

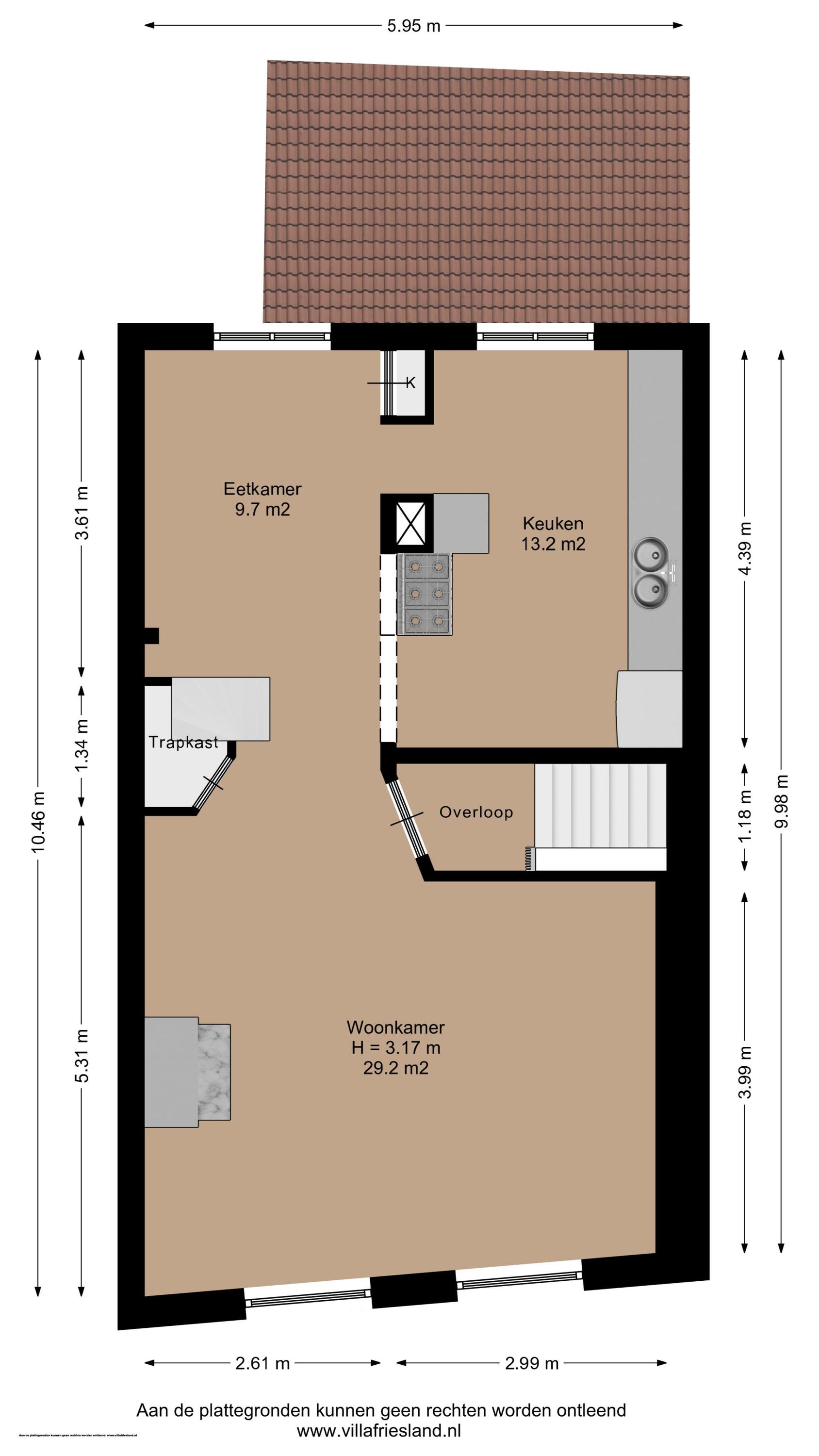
Canal House Harlingen — редкое сочетание исторического наследия и сдержанной роскоши, предлагающее 208 м² жилой площади в самом сердце легендарного порта Фрисландии. Этот национальный памятник, построенный в 1639 году, выделяется на набережной Noorderhaven своей знаковой фасадой, ведущей в интерьеры, где атмосфера определяется старинным мастерством и простором помещений. Пять спален и три ванные комнаты расположены на четырёх элегантных этажах, каждый из которых наполнен светом благодаря оригинальным подъемным окнам и видами на город и приливную гавань.

На бельэтаже находится изысканный кабинет с видом на воду и просторная садовая комната с выходом в частный сад города, обращённый на юг. Гостиная и столовая организованы с уважением к историческим деталям—декоративные потолки, антикварные деревянные полы, мраморные камины и аутентичная кухня, украшенная традиционной фризской плиткой. Крыша была полностью утеплена и обновлена в 2015 году, что позволяет идеально сочетать комфорт с историческим характером дома.

Городская жизнь раскрывается в нескольких шагах от ресторанов-бутиков, всей инфраструктуры и железнодорожной станции, а до Амстердама можно добраться всего за час по дамбе Афслёйтдейк. Современные улучшения—двойные стеклопакеты, механическая и естественная вентиляция, оптоволоконная проводка и энергоэффективное отопление—гармонично дополняют оригинальную структуру. В Canal House Harlingen поток истории встречается с ежедневным спокойствием, делая это предложение исключительной возможностью жить там, где сюжет и место неразрывны. Тем, кто ищет роскошный дом на канале в Харлингене, это поместье дарит уединение в центре города и непрерывную панораму гавани.

Исследуйте Harlingen вместе с Baerz — вашим надежным советником и личным поисковиком недвижимости

Элитный сегмент управляется частными сделками, сложными правилами и тонкой средой охраны наследия. Опытные эксперты по недвижимости открывают доступ к внебиржевым объектам и сопровождают на всех этапах сделки, обеспечивая максимальную рыночную ценность в рамках голландских правовых и культурных особенностей.

Избегайте распространённых ошибок

Международные покупатели часто тратят ценное время на изучение дублирующихся, устаревших или вводящих в заблуждение онлайн-объявлений, особенно учитывая, что почти 30% объектов элитной недвижимости вообще не появляются на открытом рынке.
Агенты продавца представляют интересы продавца, а не ваши, и даже простой запрос о недвижимости может привести к тому, что агентство зарегистрирует вас как своего “клиента” без вашего согласия.
С Baerz Property Finders & Advisors вы полностью избегаете этих подводных камней.
Мы действуем исключительно в ваших интересах, предоставляя независимое представительство, прозрачные рекомендации и доступ ко всем доступным объектам, включая частные и вне-рыночные предложения, которых другие никогда не увидят.

Хотите узнать, как получить собственного персонального консультанта по недвижимости? Свяжитесь с нами, чтобы узнать, как мы можем представлять ваши интересы и открыть вам весь рынок.

Особенности

Передача права собственности
Запрашиваемая цена
€ 1.150.000 k.k.
Статус
beschikbaar
Принятие
in overleg
Строительство
Тип дома
Grachtenpand
Тип здания
tussenwoning
Тип крыши
samengesteld dak
Спальни
5
Ванные комнаты
3
Площадь и объем
Жилая площадь
208 m2
Другое внутреннее пространство
0 m2
Объем в кубических метрах
762 m3
Размер участка
148 m2
Удобства
Mechanische ventilatie
Tv kabel
Rookkanaal
Dakraam
Glasvezel kabel
Natuurlijke ventilatie
Aan water
In centrum
Vrij uitzicht
Aan vaarwater
Baerz & Co Property Brochure

Брошюра

Видео

Планы этажей

Villa Friesland Makelaardij

Lange Marktstraat 1
8911 AD Leeuwarden

info@villafriesland.nl
+31 (0)58 - 23 006 23

www.villafriesland.nl

Информация / Запрос на просмотр

Ellen Schoneveld profile image
Ellen Schoneveld
Real Estate Agent