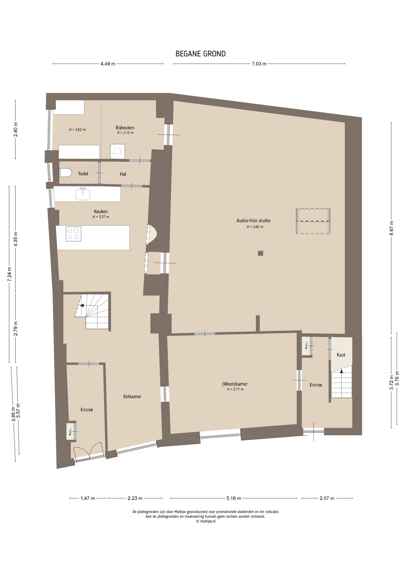
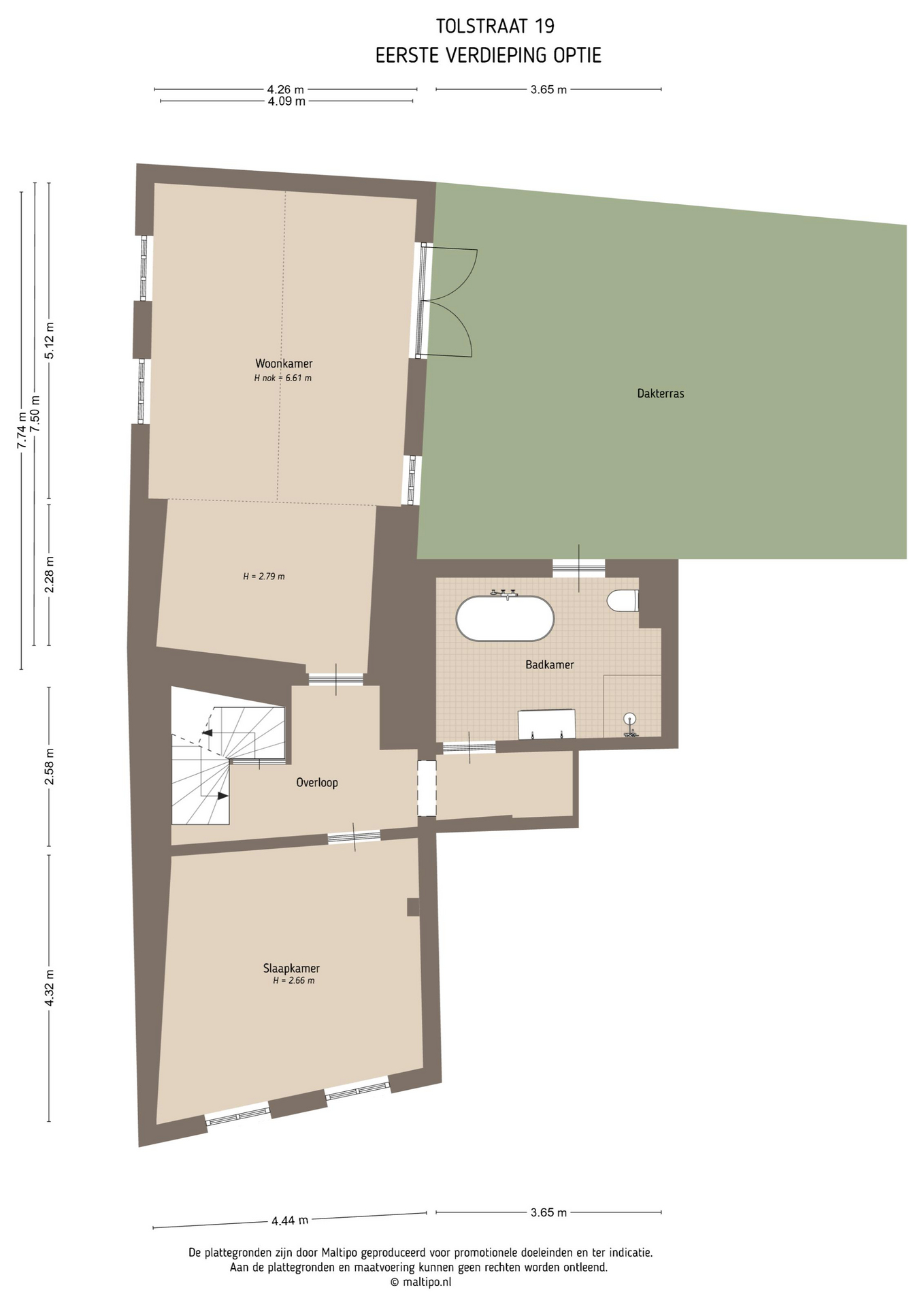
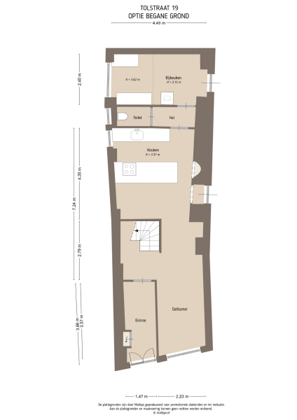
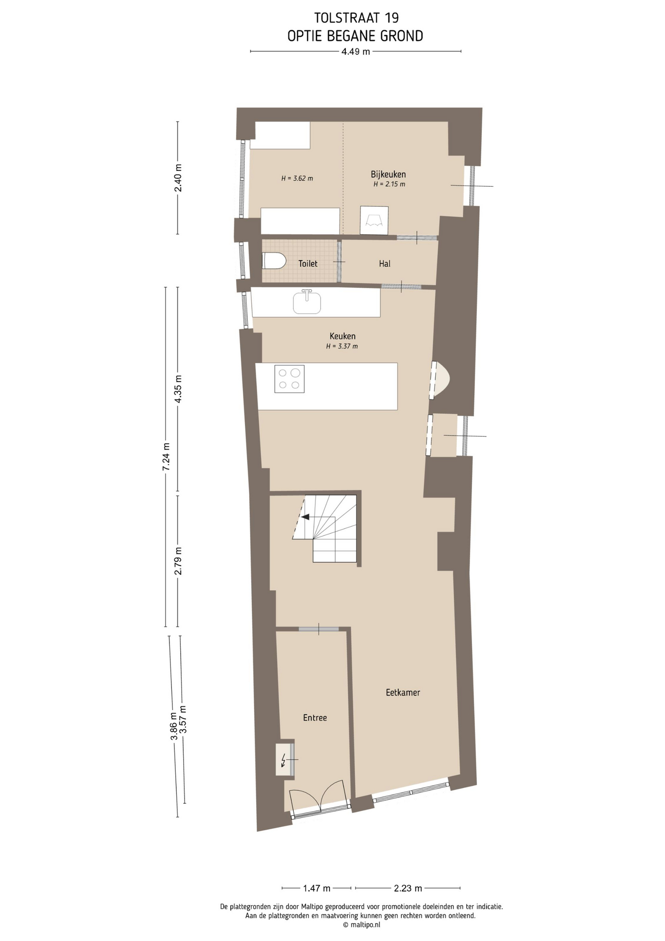
Таунхаус Zaltbommel предлагает редкое сочетание простора, исторического наследия и универсальности: 299 м² тщательно восстановленных интерьеров и терраса на крыше площадью 45 м² с видом на реку Ваал. Этот объект для жизни и работы, расположенный в пределах исторических укреплений, объединяет три спальни и две ванные комнаты в двух связанных между собой резиденциях на участке 204 м², с возможностью деления (при наличии разрешения).
Архитектура сохраняет дух XVII века — от открытых балок до старинной винтовой лестницы — интегрируя современные удобства: кухня 2020 года, роскошные ванные комнаты и обновленная теплоизоляция по всему дому. На каждом уровне много естественного света, высокие потолки и гармоничное пространство: просторная кухня собирает семью, а солнечная мастерская или студия площадью около 65 м² создает прекрасные условия для творчества. Гостиная с потолками высотой 6,5 метра соединяет комфорт внутри и спокойствие снаружи через двойные двери на благоустроенную террасу, откуда открываются виды на реку и оливковые деревья, украшая тихие утренние часы.
Tolstraat 21 дополняет дом отдельной студией с акустической изоляцией и приватным входом, идеально подходящей для галереи или мастерской. Класс энергопотребления C подтверждает продуманные улучшения: утепление крыши и стен, стеклопакеты с высоким КПД, напольное отопление в отдельных помещениях и девятнадцать солнечных панелей. Среди удобств: оптоволоконный интернет, система сигнализации и естественная вентиляция.
Расположение на односторонней тихой улочке рядом с оживленным центром Залтбоммела обеспечивает приватность и удобство: кафе, бутики, школы, спортивные клубы и вокзал — в шаговой доступности. Прогулочная набережная Ваалкаде и местные магазины расположены рядом, что делает этот таунхаус привлекательным вариантом для тех, кто ищет адаптируемое пространство, ценит историческую преемственность и стремится к связи с голландским ландшафтом.
Исследуйте Zaltbommel вместе с Baerz — вашим надежным советником и личным поисковиком недвижимости
Доступ к лучшей недвижимости требует связей и экспертизы сверх открытого рынка. Персональные советники используют местные связи и глубокие знания, чтобы находить эксклюзивные объекты, сопровождать сделки и учитывать все юридические нюансы в интересах клиентов на каждом этапе.
Избегайте распространённых ошибок
Международные покупатели часто тратят ценное время на изучение дублирующихся, устаревших или вводящих в заблуждение онлайн-объявлений, особенно учитывая, что почти 30% объектов элитной недвижимости вообще не появляются на открытом рынке.
Агенты продавца представляют интересы продавца, а не ваши, и даже простой запрос о недвижимости может привести к тому, что агентство зарегистрирует вас как своего “клиента” без вашего согласия.
С Baerz Property Finders & Advisors вы полностью избегаете этих подводных камней.
Мы действуем исключительно в ваших интересах, предоставляя независимое представительство, прозрачные рекомендации и доступ ко всем доступным объектам, включая частные и вне-рыночные предложения, которых другие никогда не увидят.
Хотите узнать, как получить собственного персонального консультанта по недвижимости? Свяжитесь с нами, чтобы узнать, как мы можем представлять ваши интересы и открыть вам весь рынок.