Ons kantoor is lid van Baerz & Co Luxury Homes; een internationaal platform dat exclusieve woningmakelaars met elkaar verbindt. Neem contact op met ons secretariaat voor meer informatie over het landelijke aanbod, waarvan u hieronder een selectie kunt bekijken.

AMSTERDAM
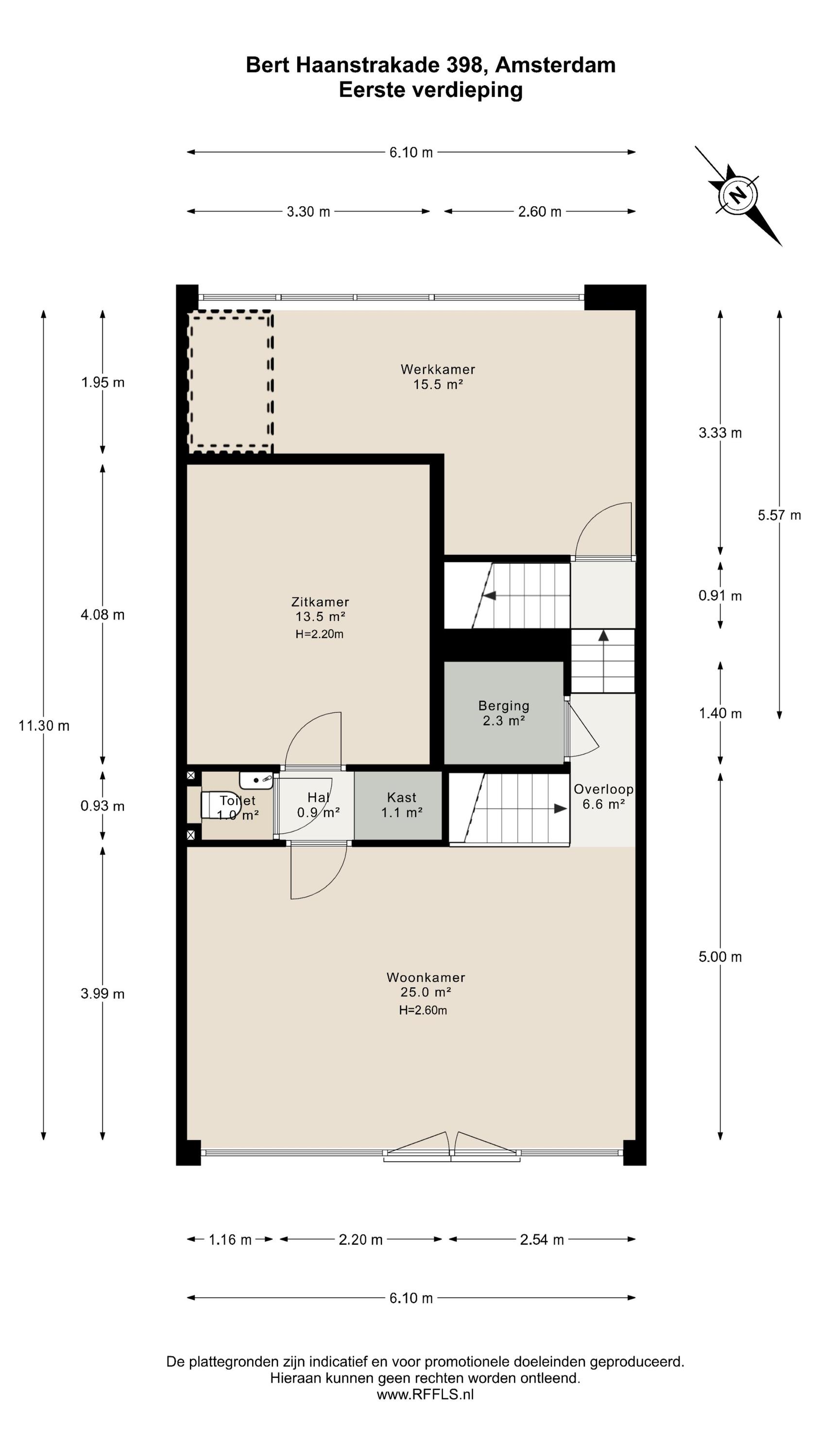
Bert Haanstrakade 398 - 1087 EC
荷兰

Sander Bovenkerk profile image
Sander Bovenkerk
Real estate agent
€1,650,000 k.k.
生活区
276m2
地块大小
177m2
卧室
5

描述

阿姆斯特丹IJburg现代家庭住宅,坐落于IJmeer湖畔,稀有地兼具通透、明亮与宁静的生活氛围。住宅建筑面积达276平方米,四层空间精心设计,兼顾私密与联通,营造出极高的舒适度和功能性。整面落地窗将湖景尽收眼底,为整体生活空间带来大量自然采光。

住宅设有五间卧室及两间卫浴,配备桑拿房、私密隔音影院以及多间可灵活使用的空间。约54平方米的南向花园通过法式落地门与开放式厨房无缝连接,既适合放松也利于社交。全屋地暖、高效节能HR++玻璃、区域供暖和17块太阳能板,共同打造无燃气、能源等级A的环保生活环境。配备室内双车位及电动车充电桩,完善居住配套。

每层空间皆呈现独特节奏。客厅拥揽湖景全貌,现代壁炉与阳台营造静谧氛围,主卧套房则兼具私享安逸。额外多功能空间可作家庭办公室或客房使用。便利设施包括机械与自然通风、实用洗衣房与储藏间。预留电梯井,便于根据需求安装电梯。

Haveneiland West地段安静,步行即可体验城市生活的多彩活力。交通便利,近A10环路,乘有轨电车15–20分钟即可直达阿姆斯特丹中央车站,同时便捷享有城市沙滩、公园、市场、餐厅和学校,自然与都市生活平衡共融。这座待售的奢华别墅充分展现了含蓄的荷兰现代主义风格与协调安宁、紧密互联的生活理念。

与 Baerz 一起探索 Amsterdam,您值得信赖的私人房产顾问和搜寻专家

驾驭阿姆斯特丹高端市场需深厚本地洞察、严密保密与谈判专业技巧。顶尖顾问可助您获取私密房源,梳理细致产权规定,并洞察那些罕见进入市场的隐藏机会。顾问团队严苛资产甄别与代表,提升协商地位、确保交易顺畅并全程保障您的隐私。

避免常见陷阱

国际买家经常浪费大量时间浏览重复、过时或误导性的在线房源,尤其是因为近 30% 的豪华物业根本不会公开上市。
卖方代理代表卖方的利益,而非您的利益;甚至仅仅对房产进行咨询,都可能导致中介在未经您同意的情况下将您登记为他们的“客户”。
通过 Baerz Property Finders & Advisors,您可以完全避免这些问题。
我们只代表您,提供独立建议、透明指导,并让您接触所有可售房源,包括私人及未上市的独家机会,这些往往不会被他人看到。

想知道如何获得您自己的私人房产顾问吗?联系我们,了解我们如何代表您的利益并为您打开整个市场。

特点

太阳能面板
所有权转让
要价
€ 1.650.000 k.k.
状态
beschikbaar
接受
in overleg
建筑
房屋类型
Eengezinswoning
建筑类型
tussenwoning
建筑时期
2015
能源评级
A
屋顶类型
plat dak
卧室
5
浴室
2
表面积和体积
生活区
276 m2
其他室内空间
0 m2
体积(立方米)
903 m3
地块大小
177 m2
设施
Mechanische ventilatie
Rookkanaal
Frans balkon
Dakraam
Sauna
Zonnepanelen
Natuurlijke ventilatie
Aan water
Aan rustige weg
In woonwijk
Vrij uitzicht
Baerz & Co Property Brochure

宣传册

视频

Heeren Makelaars

Stadionweg 75
1077 SE Amsterdam

info@heerenmakelaars.nl
+31 204702255

www.heerenmakelaars.nl

信息/查看请求

Sander Bovenkerk profile image
Sander Bovenkerk
Real estate agent