Ons kantoor is lid van Baerz & Co Luxury Homes; een internationaal platform dat exclusieve woningmakelaars met elkaar verbindt. Neem contact op met ons secretariaat voor meer informatie over het landelijke aanbod, waarvan u hieronder een selectie kunt bekijken.

AMSTERDAM, NH
Kalverstraat 218 E - 1012 XJ
荷兰

Niels Eering profile image
Niels Eering
Real Estate Agent
€3,250 p.m.
生活区
72m2
地块大小
N/A
卧室
2

描述

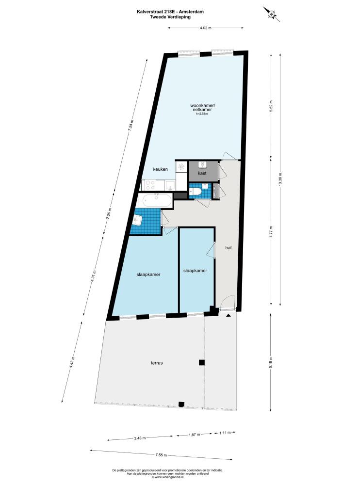
阿姆斯特丹市中心Kalverstraat公寓提供72平方米精心规划的生活空间,静谧地坐落于城市标志性购物街之上。步入建筑中央大厅,乘电梯而上,进入一处现代建筑与严密隔音相结合的居所,于阿姆斯特丹心脏地带缔造难得的安宁。

两间宽敞卧室与大露台相连,无论是工作、招待宾客还是个人休憩,皆灵活适用。明亮的客厅配有法式门和典雅阳台,将城市脉动纳于眼前,橡木拼花地板则赋予居家温暖气息。开放式厨房配备一体化厨电与实用储藏空间,无缝对接休闲社交区域。

浴室内设有浴缸和现代洗手台,另有独立卫生间与配备洗衣设施的多功能间。7平方米的地下储藏室提升便利性,大楼电梯则确保轻松抵达各层。屋顶、墙体、地板与双层玻璃的全方位隔热,让居民舒适生活,达至能源等级C。

地处Rokin、Singel与Heiligeweg之间,步行即达精品店、文化场所、超市及交通枢纽。虽邻近阿姆斯特丹的活力核心,这座现代公寓依然是静谧的城市避风港,融合了私密、便利与低调雅致于一体,实属难得。

与 Baerz 一起探索 Amsterdam,您值得信赖的私人房产顾问和搜寻专家

驾驭阿姆斯特丹高端市场需深厚本地洞察、严密保密与谈判专业技巧。顶尖顾问可助您获取私密房源,梳理细致产权规定,并洞察那些罕见进入市场的隐藏机会。顾问团队严苛资产甄别与代表,提升协商地位、确保交易顺畅并全程保障您的隐私。

避免常见陷阱

国际买家经常浪费大量时间浏览重复、过时或误导性的在线房源,尤其是因为近 30% 的豪华物业根本不会公开上市。
卖方代理代表卖方的利益,而非您的利益;甚至仅仅对房产进行咨询,都可能导致中介在未经您同意的情况下将您登记为他们的“客户”。
通过 Baerz Property Finders & Advisors,您可以完全避免这些问题。
我们只代表您,提供独立建议、透明指导,并让您接触所有可售房源,包括私人及未上市的独家机会,这些往往不会被他人看到。

想知道如何获得您自己的私人房产顾问吗?联系我们,了解我们如何代表您的利益并为您打开整个市场。

特点

所有权转让
租金
€ 3.250 p.m.
状态
beschikbaar
接受
in overleg
建筑
房屋类型
Bovenwoning
建筑类型
appartement
建筑时期
1997
能源评级
C
屋顶类型
plat dak
卧室
2
浴室
1
表面积和体积
生活区
72 m2
其他室内空间
0 m2
附属于建筑的外部空间
34 m2
外部储存空间
7 m2
体积(立方米)
220 m3
设施
Mechanische ventilatie
Tv kabel
Lift
Frans balkon
In centrum
Beschutte ligging
Baerz & Co Property Brochure

宣传册

视频

11 Makelaars - Amsterdam Noord

Mt. Lincolnweg 36 - 617
1033SN Amsterdam

info@11makelaars.nl
+31 20 20 50 208

www.11makelaars.nl

信息/查看请求

Niels Eering profile image
Niels Eering
Real Estate Agent