Welkom bij Leygraaf Makelaars Internationaal. Ook ver buiten Nederland zijn wij zeer actief. Via ons internationale netwerk binnen Baerz & Co Luxury Homes begeleiden onze Nederlandse (!) partners u vakkundig bij de aankoop van exclusieve tweede huizen. U vindt ons in 20 landen rond de Middellandse zee, de Alpen, Mexico en Dubai. Neem voor meer informatie contact op met ons secretariaat.

BARCELONA
西班牙

Chantal Cunningham profile image
Chantal Cunningham
Chief Property Advisory
€2,100,000
生活区
201m2
地块大小
N/A
卧室
3

描述

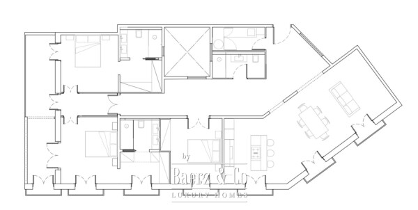
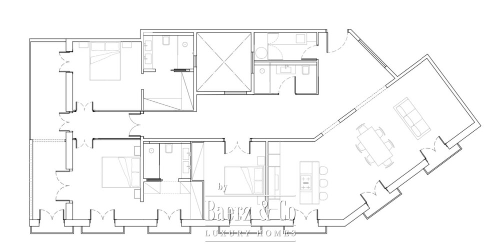
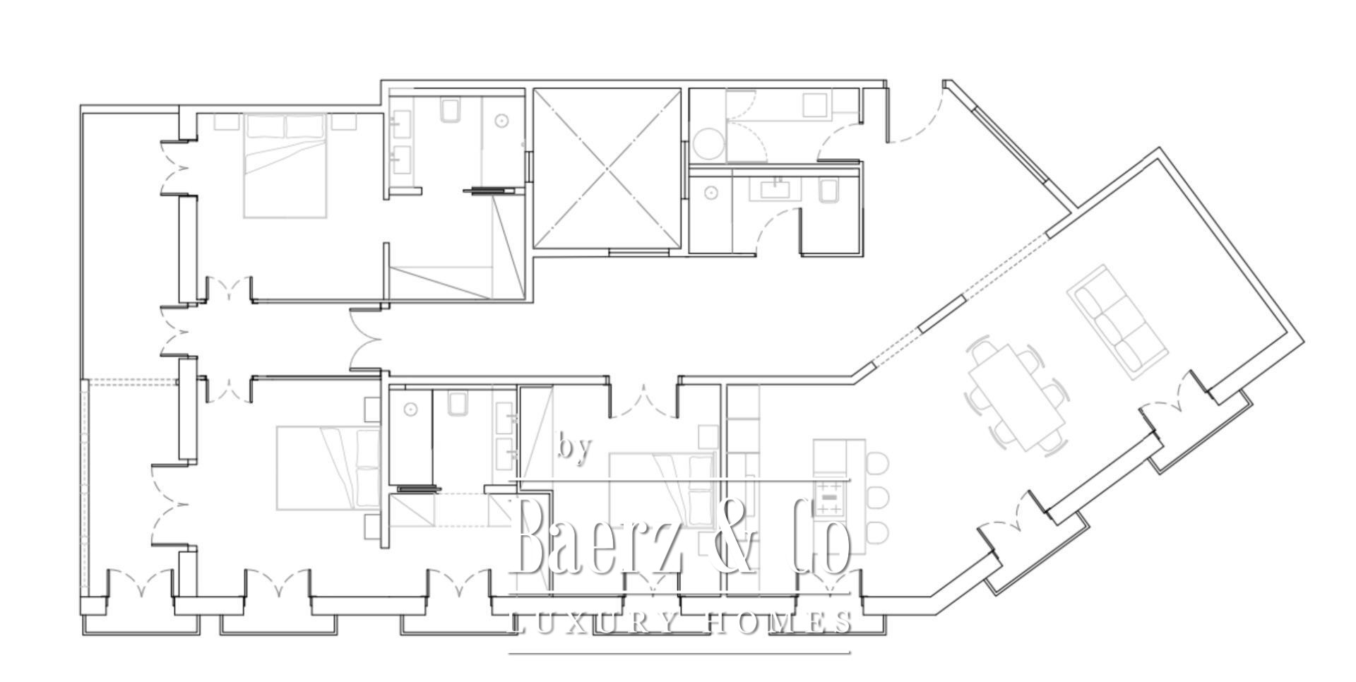
巴塞罗那Quadrat d'Or顶层公寓在Calle Girona与Gran Via de les Corts Catalanes交汇处,彰显精致生活美学。这套201平方米的全新翻修顶层公寓拥有20平方米露台,坐落于巴塞罗那标志性的Quadrat d'Or核心区,可直达Passeig de Gràcia和Plaça Catalunya两大地标。专为重视设计、渊源和历史街区恒久魅力的品位人士打造。

布局提供三间双人卧室,其中两间为套房,共设有三间全卫浴。精心修复的原装水泥瓷砖地板与木制工艺细节,为居住空间注入现代舒适感,搭配高效空气能系统。宽敞的客厅与餐区完美融合定制开放式厨房,配备中央岛台、顶级Miele和Liebherr家电、Neolith石材台面及烤漆橱柜。多个阳台、充足储物空间及独立洗衣区,为日常生活提供便利。

露台和阳台带来充沛采光,实现室内优雅与巴塞罗那天际线的和谐对话。大楼配有电梯及专业礼宾服务。这座待售的奢华顶层公寓结合都市活力与居家私密,环绕餐厅、剧院、精品店及建筑地标,于城市心脏地带营造出静谧而内敛的格调。

与 Baerz 一起探索 Barcelona,您值得信赖的私人房产顾问和搜寻专家

专业顾问在巴塞罗那高端物业领域的重要性不可替代。精准把握本土市场,获取稀缺隐蔽房源,并在议价谈判中为客户把关。量身定制顾问服务,提供严密保密机制、强大人脉与全程风险管理,助力买卖双方达成目标。

避免常见陷阱

国际买家经常浪费大量时间浏览重复、过时或误导性的在线房源,尤其是因为近 30% 的豪华物业根本不会公开上市。
卖方代理代表卖方的利益,而非您的利益;甚至仅仅对房产进行咨询,都可能导致中介在未经您同意的情况下将您登记为他们的“客户”。
通过 Baerz Property Finders & Advisors,您可以完全避免这些问题。
我们只代表您,提供独立建议、透明指导,并让您接触所有可售房源,包括私人及未上市的独家机会,这些往往不会被他人看到。

想知道如何获得您自己的私人房产顾问吗?联系我们,了解我们如何代表您的利益并为您打开整个市场。

特点

所有权转让
要价
€ 2.100.000
LAS
建筑
房间
N/A
卧室
3
浴室
3
表面积和体积
生活区
201 m2
地块大小
0 m2
设施
Balcon
A/A
Telephone
Terrace
Elevator
Wardrobes cupboard
Appliances
Light
Town Gas
Laundry
Automatic Doors
Satellite
T. V.
Clearly
Baerz & Co Property Brochure

宣传册

视频

信息/查看请求

Chantal Cunningham profile image
Chantal Cunningham
Chief Property Advisory

Buying a Luxury Property in Barcelona

巴塞罗那高端不动产市场欢迎国际居民追求高雅生活、活力文化与稳健投资机遇。在这座地中海之都,传承、社群与全球化服务完美兼具。