Ons kantoor is lid van Baerz & Co Luxury Homes; een internationaal platform dat exclusieve woningmakelaars met elkaar verbindt. Neem contact op met ons secretariaat voor meer informatie over het landelijke aanbod, waarvan u hieronder een selectie kunt bekijken.

BERGEN (NH)
Plein 32 - 1861 JZ
荷兰

Angeline Croonen profile image
Angeline Croonen
Real Estate Agent
€1,145,000 k.k.
生活区
180m2
地块大小
N/A
卧室
3

描述

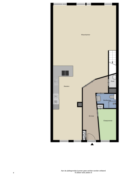
Bergen公寓及车库位于Plein 32黄金地段,在卑尔根充满活力的市中心,分两层提供180平方米的精致宜居空间。抵达后,经由带电梯和楼梯的中央入口进入住宅,宽敞的南向露台是您的第一道门廊。室内明亮开阔的门厅由自然光充盈,营造出平和宽敞的即刻氛围,并通向首间卧室、浴室以及开放式客厅。

客厅采用大面积窗户和双采光管设计,空气流通、温馨宜人。两组独立休息区适合放松或接待宾客。相邻的高档厨房配备优质嵌入式家电和细致的储藏空间。主楼层还设有一间多功能书房或卧室,以及配备淋浴、马桶和洗手盆的浴室。

楼上两间额外卧室设有衣柜空间并灵活可变。主浴室配备步入式淋浴、双台盆和浴缸。后侧卧室通向一座朝南的私人阳台,享有静谧的城市景致。宽敞的车库(独立车位)安全设于下层,配合大楼电梯、机械通风及平衡通风系统,令日常生活更加便捷。

居于卑尔根市中心,步行即达各家精品店、咖啡馆和生活设施,附近的海滩与沙丘又为城市生活增添疗愈的自然气息。公寓全屋地暖,实现高效隔热,并配备2020年安装的8块太阳能板,提升能源效率。整体呈现出一套低调而宽敞的城市公寓,兼顾都市节奏与私密安逸。

特点

所有权转让
要价
€ 1.145.000 k.k.
状态
beschikbaar
接受
in overleg
建筑
房屋类型
Bovenwoning
建筑类型
appartement
建筑时期
2003
能源评级
B
屋顶类型
plat dak
卧室
3
浴室
2
表面积和体积
生活区
180 m2
其他室内空间
0 m2
附属于建筑的外部空间
29 m2
外部储存空间
28 m2
体积(立方米)
596 m3
设施
Mechanische ventilatie
Tv kabel
Lift
Dakraam
Balansventilatie
In centrum
Baerz & Co Property Brochure

宣传册

视频

户型图

Croon Makelaars

Breelaan 41
1861 GD Bergen

info@croonmakelaars.nl
+31 (0)72 743 32 44

www.croonmakelaars.nl

信息/查看请求

Angeline Croonen profile image
Angeline Croonen
Real Estate Agent