Ons kantoor is lid van Baerz & Co Luxury Homes; een internationaal platform dat exclusieve woningmakelaars met elkaar verbindt. Neem contact op met ons secretariaat voor meer informatie over het landelijke aanbod, waarvan u hieronder een selectie kunt bekijken.

BERGEN (NH)
Wiertdijkje 1 - 1861 CE
荷兰

Angeline Croonen profile image
Angeline Croonen
Real Estate Agent
€1,195,000 k.k.
生活区
194m2
地块大小
635m2
卧室
2

描述

Bergen NH别墅坐落于备受青睐的地段,呈现了极为罕见的居住机会,可纵览荷兰圩田、风车及远处沙丘的全景。此套待售别墅将独特格调与低调私密完美结合,每一处视角均可日复一日欣赏不断变幻的荷兰风光。

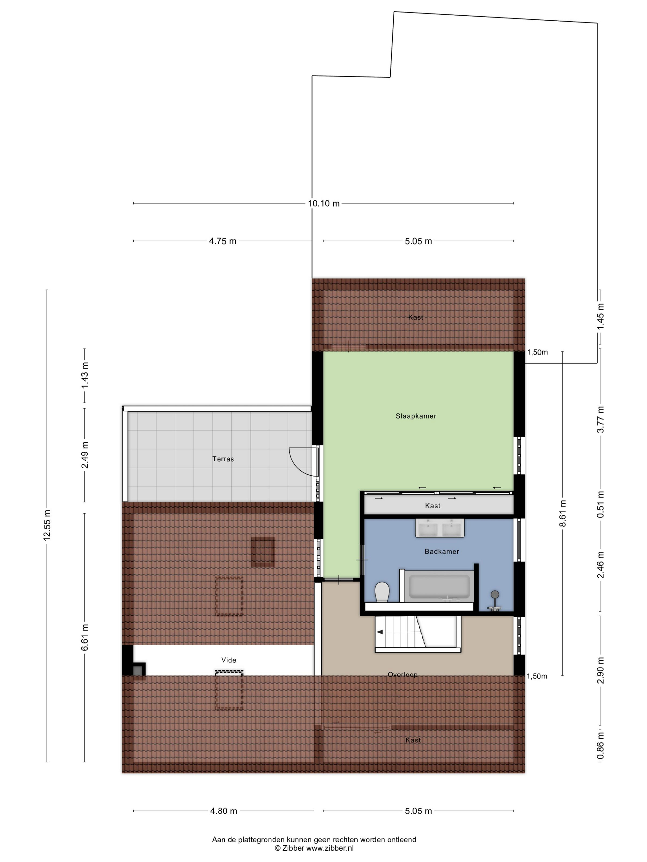
194平方米的住宅由深邃的前庭展开,成熟植被与封闭式入口保障了充足的私密性。底层空间布置灵活,一间设有独立卫浴的卧室方便实现全层单层生活。另设专用书房或客房及额外淋浴间,灵活兼顾办公需求与访客接待。

客厅内燃气壁炉为中心,裸露横梁与彩色玻璃窗彰显别墅传承。高挑天花保障采光充沛,相邻厨房配备全套嵌入式家电,并延展至具有现代便利功能的杂物间。二层主卧连接宽敞屋顶露台,可远眺乡间落日余晖。2018年翻新的二层浴室配置浴缸、步入式淋浴及双台盆。

西南朝向的户外露台让生活空间进一步拓展,非常适合夏日晚间休憩。多车位停车位均设于安全围合范围内。住宅直通林地,并紧邻Bergen村落生活与海滩,兼具私密、自然景致及本地配套的和谐平衡。物业总占地635平方米,设有两间卧室与两间浴室,以低调优雅邀您开启属于自己的未来。

特点

所有权转让
要价
€ 1.195.000 k.k.
状态
beschikbaar
接受
in overleg
建筑
房屋类型
Eengezinswoning
建筑类型
vrijstaande woning
建筑时期
1948
能源评级
F
屋顶类型
samengesteld dak
卧室
2
浴室
3
表面积和体积
生活区
194 m2
其他室内空间
11 m2
附属于建筑的外部空间
13 m2
体积(立方米)
763 m3
地块大小
635 m2
设施
Mechanische ventilatie
Tv kabel
Rookkanaal
Aan bosrand
Aan rustige weg
Vrij uitzicht
Buiten bebouwde kom
In bosrijke omgeving
Landelijk gelegen
Baerz & Co Property Brochure

宣传册

视频

户型图

Croon Makelaars

Breelaan 41
1861 GD Bergen

info@croonmakelaars.nl
+31 (0)72 743 32 44

www.croonmakelaars.nl

信息/查看请求

Angeline Croonen profile image
Angeline Croonen
Real Estate Agent