Ons kantoor is lid van Baerz & Co Luxury Homes; een internationaal platform dat exclusieve woningmakelaars met elkaar verbindt. Neem contact op met ons secretariaat voor meer informatie over het landelijke aanbod, waarvan u hieronder een selectie kunt bekijken.

HELMOND
Kaldersedijk 8 - 5706 KD
荷兰

Dirk van Santvoort profile image
Dirk van Santvoort
Dirk van Santvoort
€1,425,000 k.k.
生活区
379m2
地块大小
4775m2
卧室
6

描述

这座位于赫尔蒙德的独立住宅,于精心打造的4,775平方米园林地块上,提供379平方米的灵活与优雅空间,坐落于Brandevoort与Mierlo之间。住宅以两套独立结构设计,适合多代同堂、宾客居住,或实现私人与专业生活的高雅分区,得益于独立入口及灵活的内部布局。

室内配备恒久耐看的装饰,配备大理石地暖、经典石膏线条以及宽大窗户,引入充足自然光。六间静谧卧室与三间雅致浴室兼顾舒适与隐私。定制厨房以烹饪享受为核心,与宁谧的居住与花园房间无缝衔接。无论是手工楼梯还是园景视野,每一细节皆传达出低调品质。

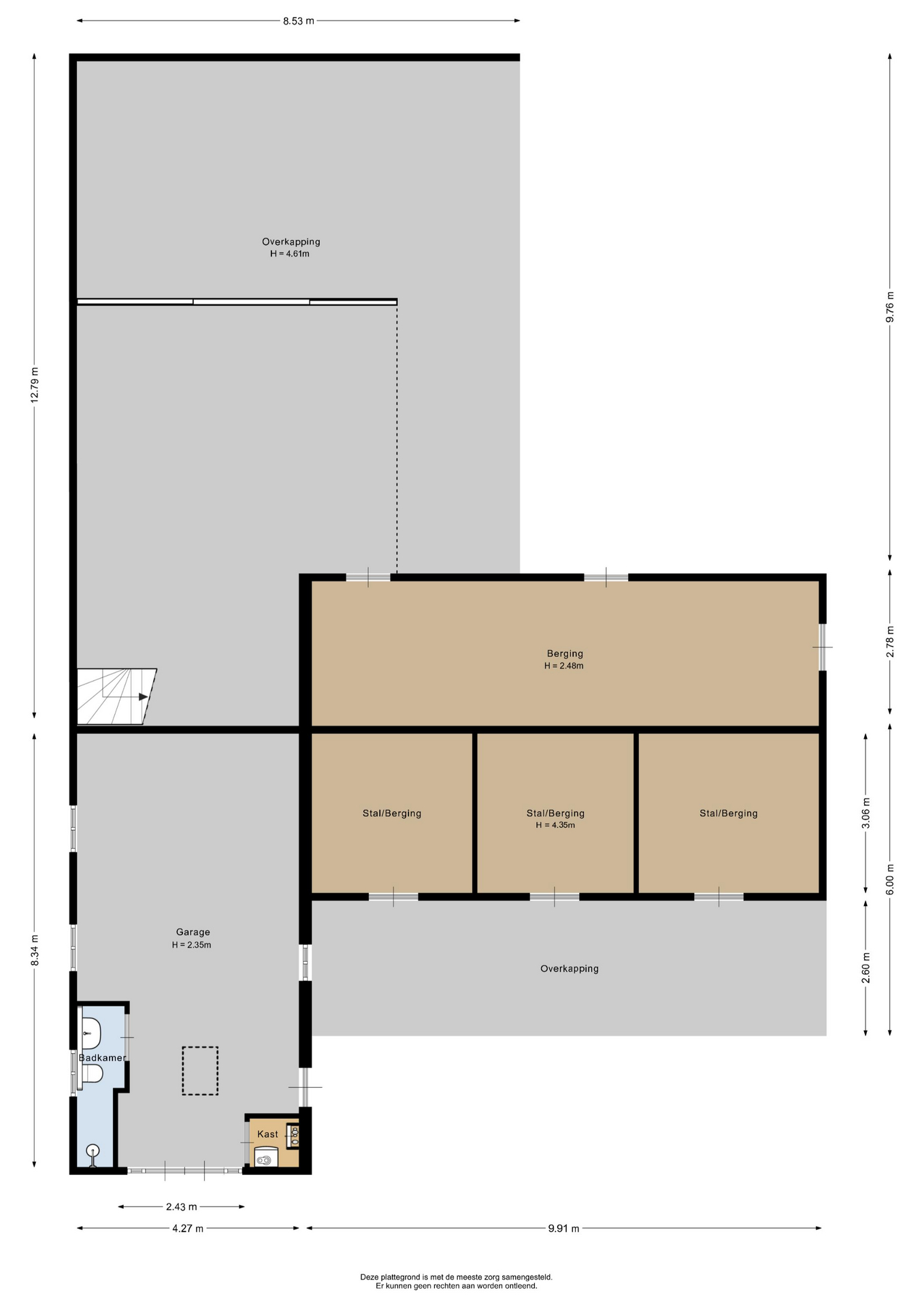
辽阔庭院包括修剪整齐的草坪、果树及坚果林、露台、大型水景。附属建筑设有带独立卫浴的车库、一间可作车辆或拖车用的田地棚,以及设有两马厩的独立马房,满足休闲与马术需求。太阳能板增强能效体系,配备光纤网络和A级能源认证。

这座赫尔蒙德独立住宅兼具城市便利与静谧居所感受。双侧独立入口、充裕储藏空间,并便捷连通赫尔蒙德与埃因霍温,赋予生活以从容与无限可能。

与 Baerz 一起探索 Helmond,您值得信赖的私人房产顾问和搜寻专家

私人顾问在把控海尔蒙德复杂房产市场方面至关重要。他们能协助客户专属获取隐秘房源、市场深度洞见及高价值住宅的专业谈判。随着规划法规变革及各区特色差异,定制化服务是获得优质结果不可或缺的保障。

避免常见陷阱

国际买家经常浪费大量时间浏览重复、过时或误导性的在线房源,尤其是因为近 30% 的豪华物业根本不会公开上市。
卖方代理代表卖方的利益,而非您的利益;甚至仅仅对房产进行咨询,都可能导致中介在未经您同意的情况下将您登记为他们的“客户”。
通过 Baerz Property Finders & Advisors,您可以完全避免这些问题。
我们只代表您,提供独立建议、透明指导,并让您接触所有可售房源,包括私人及未上市的独家机会,这些往往不会被他人看到。

想知道如何获得您自己的私人房产顾问吗?联系我们,了解我们如何代表您的利益并为您打开整个市场。

特点

太阳能面板
所有权转让
要价
€ 1.425.000 k.k.
状态
beschikbaar
接受
in overleg
建筑
房屋类型
Landhuis
建筑类型
vrijstaande woning
建筑时期
2001
能源评级
A
屋顶类型
samengesteld dak
卧室
6
浴室
3
表面积和体积
生活区
379 m2
其他室内空间
8 m2
附属于建筑的外部空间
38 m2
外部储存空间
157 m2
体积(立方米)
1337 m3
地块大小
4775 m2
设施
Dakraam
Glasvezel kabel
Zonnepanelen
Natuurlijke ventilatie
Aan rustige weg
Baerz & Co Property Brochure

宣传册

视频

Van Santvoort Makelaars

Torenallee 65
5617 BB Eindhoven

dirk@vansantvoort.nl
+31 40 269 25 30

www.vansantvoort.nl

信息/查看请求

Dirk van Santvoort profile image
Dirk van Santvoort
Dirk van Santvoort