Ons kantoor is lid van Baerz & Co Luxury Homes; een internationaal platform dat exclusieve woningmakelaars met elkaar verbindt. Neem contact op met ons secretariaat voor meer informatie over het landelijke aanbod, waarvan u hieronder een selectie kunt bekijken.

ROTTERDAM
Straatweg 20 - 3051 BE
荷兰

Joris van Oosten profile image
Joris van Oosten
Real estate agent
€1,295,000 k.k.
生活区
232m2
地块大小
413m2
卧室
6

描述

鹿特丹斯多特维街联排别墅为您带来 232 平方米精心规划的居住空间,位于希勒赫斯贝赫最为雅致的街道之一。经典立面之后,内部空间在保留原有细节与现代饰面中找到平衡——这是一个适合沉思的家庭居所,配有六间卧室、两间浴室,以及难得一见的宽敞感。精心翻新的开放式厨房配备宽大中岛和高端家电,与明亮的日光房无缝衔接,并通过法式落地门通向一片异常深远的花园。户外空间属 413 平方米永久产权地块的一部分,环境静谧、私密且阳光充足,辅以 18 平方米储藏间和成熟绿植。

与 Baerz 一起探索 Rotterdam,您值得信赖的私人房产顾问和搜寻专家

要在鹿特丹充满活力的房产市场中顺利置业,需有经验丰富且懂国际服务的本地顾问。私密掌握未上市资源、有策略地谈判,以及对法规的深度了解,使高端客户做出精准决策。这种专长帮助优化投资机会,保障客户利益。

避免常见陷阱

国际买家经常浪费大量时间浏览重复、过时或误导性的在线房源,尤其是因为近 30% 的豪华物业根本不会公开上市。
卖方代理代表卖方的利益,而非您的利益;甚至仅仅对房产进行咨询,都可能导致中介在未经您同意的情况下将您登记为他们的“客户”。
通过 Baerz Property Finders & Advisors,您可以完全避免这些问题。
我们只代表您,提供独立建议、透明指导,并让您接触所有可售房源,包括私人及未上市的独家机会,这些往往不会被他人看到。

想知道如何获得您自己的私人房产顾问吗?联系我们,了解我们如何代表您的利益并为您打开整个市场。

特点

Alarm system
空调
所有权转让
要价
€ 1.295.000 k.k.
状态
beschikbaar
接受
in overleg
建筑
房屋类型
Herenhuis
建筑类型
tussenwoning
建筑时期
1903
能源评级
B
屋顶类型
zadeldak
卧室
6
浴室
2
表面积和体积
生活区
232 m2
其他室内空间
0 m2
附属于建筑的外部空间
12 m2
外部储存空间
18 m2
体积(立方米)
821 m3
地块大小
413 m2
设施
Alarminstallatie
Tv kabel
Airconditioning
Dakraam
Domotica
Natuurlijke ventilatie
In woonwijk
Baerz & Co Property Brochure

宣传册

视频

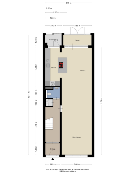
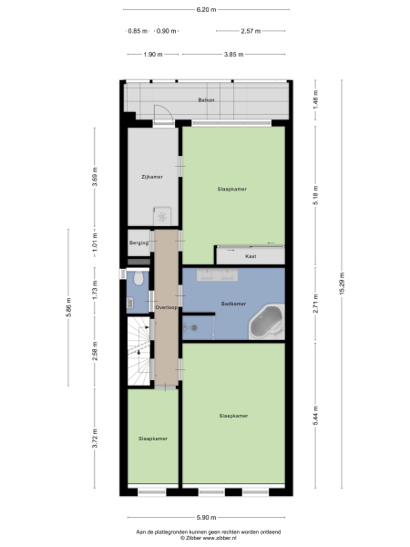
户型图

J.J. Van Oosten Makelaardij BV

Straatweg 225
3054 AG Rotterdam

info@vanoostenmakelaardij.nl
+31 10 422 11 00

www.vanoostenmakelaardij.nl

信息/查看请求

Joris van Oosten profile image
Joris van Oosten
Real estate agent