This surprisingly spacious and modernised house is ideal for those looking for living space, both indoors and outdoors. Located in a pleasant, quiet street, it has a deep garden and offers plenty of privacy.
De Koningsweg is located a short distance from the extensive forest and dune area, which begins at the end of the road. The beach is easily accessible by bicycle, and the charming centre of Schoorl is also within cycling distance.
Upon entering, you will immediately notice the spacious hall, with meter cupboard, bathroom and stairs to the upper floor. There is a practical storage space under the stairs. The bathroom is spacious and equipped with a shower, toilet, washbasin and radiator.
Double doors give access to the spacious L-shaped living room, where you are immediately welcomed by lots of light thanks to the large windows. In the corner is a cosy sitting area with an attractive gas fireplace. The oak laminate flooring in combination with underfloor heating throughout the ground floor creates a warm and comfortable atmosphere.
The open kitchen is attractively decorated and equipped with a cosy bar with seating. From the kitchen, you can enjoy a beautiful view of the garden and there is a direct connection to the living room. Thanks to the open layout and abundant light, everything feels spacious, fresh and inviting.
Adjacent to the kitchen is the spacious utility room with built-in cupboards and connections for a washing machine and dryer. The utility room also has an additional toilet and a door to the garden and terrace.
From the utility room, there is access to an additional room with air conditioning, built-in cupboards and a loft. This room is currently used as an office but could also serve as a bedroom or hobby room. The loft offers additional storage space.
On the first floor, there are three bedrooms and a spacious bathroom with double sink, toilet, bathtub and a generous double walk-in shower. Underfloor heating is also present here, as well as a radiator. The master bedroom is spacious and has plenty of built-in cupboard space. There are two additional bright bedrooms, both with built-in cupboards and access to a private balcony. There is a handy storage cupboard under the stairs to the attic.
The second floor offers even more space: a large landing and two rooms. One of these is currently used as a guest room, while the other contains the central heating system and could also be used as a study.
The entire house is equipped with LED lighting and is well maintained.
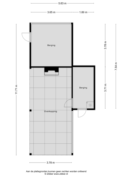
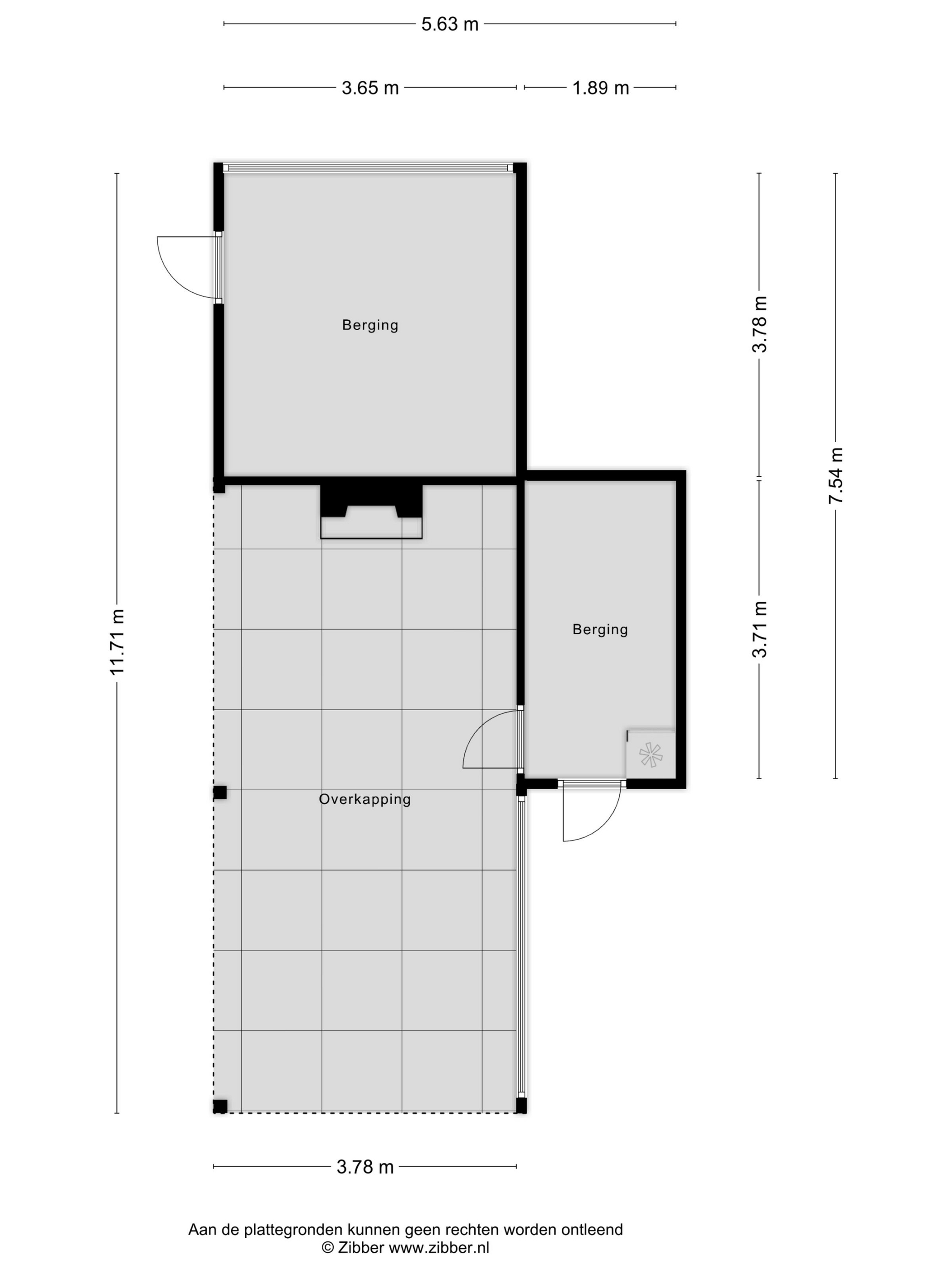
The back garden is very spacious and well landscaped. There is a lovely veranda with a wood-burning stove, seating area, storage space, electricity, lighting and (cold) water. There is also a spacious chicken coop in the garden, which will remain.
This property has been thoughtfully designed and finished in every detail, with plenty of living space, a practical layout and endless possibilities. A ready-to-move-in property in a quiet location, with everything you need.
If you are interested, please contact our office and we will be happy to show you around.